Direkt im Zentrum von Dresden - ca. 300 m² Bürofläche mieten!
Eckdaten
| Objekt-ID: | 10176_03 |
| Lage: | 01067 Dresden |
| Immobilienart: | Bürofläche |
| Etage: | 5 |
| Bürofläche: | ca. 300 m² |
| Gesamtfläche: | ca. 300 m² |
| Baujahr: | 1999 |
| Bezugstermin: | kurzfristig |
| Nettokaltmiete/m²/Monat: | 15,50 € |
| Nebenkosten/m²/Monat: | 1.350,00 € |
Beschreibung
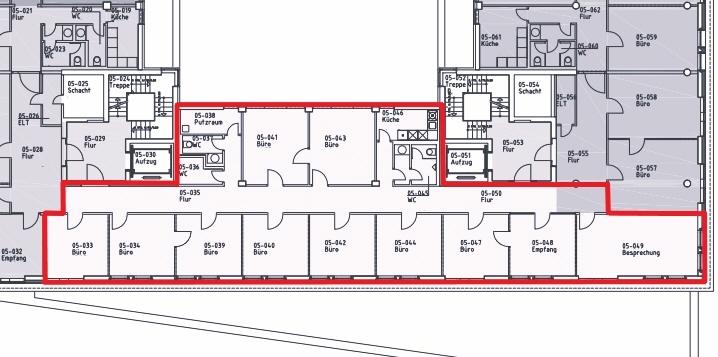
Zur Vermietung steht eine ca. 300 m² große Bürofläche, die sich im 5. Obergeschoss eines Büro- und Geschäftshauses befindet.
Die Mietflächen im Erdgeschoss sind als Einzelhandelsfläche /Gastronomiefläche und die oberen Etagen als Büroflächen vermietet.
Bei Interesse stimmen wir gern einen Besichtigungstermin ab.
Die Mietflächen im Erdgeschoss sind als Einzelhandelsfläche /Gastronomiefläche und die oberen Etagen als Büroflächen vermietet.
Bei Interesse stimmen wir gern einen Besichtigungstermin ab.
Lage
Die Immobilie befindet sich in bester Lage innerhalb der Dresdner City, direkt am Altmarkt. Restaurants, Geschäfte sowie Einrichtungen des täglichen Bedarfs befinden sich in der unmittelbaren Umgebung.
Das Stadtzentrum besticht neben dem historisch repräsentativen Stadtkern vor allem durch die sehr gute Anbindung zum ÖPNV, die Nähe zum Hauptbahnhof und den vielen Einkaufsmöglichkeiten sowie allen oberzentralen Funktionen der Landeshauptstadt.
Altmarkt 10
Das Stadtzentrum besticht neben dem historisch repräsentativen Stadtkern vor allem durch die sehr gute Anbindung zum ÖPNV, die Nähe zum Hauptbahnhof und den vielen Einkaufsmöglichkeiten sowie allen oberzentralen Funktionen der Landeshauptstadt.
Altmarkt 10
Ausstattungsbeschreibung
- Aufzug
- Tiefgarage
- Teppichbelag
- Teeküche
- Getrennte WC-Anlage
- Datenverkabelung über Bodentanks
- Außenliegender Sonnenschutz
- Wachschutz
- Glaselemente
- Tiefgarage
- Teppichbelag
- Teeküche
- Getrennte WC-Anlage
- Datenverkabelung über Bodentanks
- Außenliegender Sonnenschutz
- Wachschutz
- Glaselemente
Sonstiges
Haftungsausschluss: Trotz sorgfältiger Bearbeitung von Daten, Bildern und Informationen übernehmen wir keine Haftung für die Richtigkeit der Angaben, ebenso wenig für die Lieferfähigkeit des Angebotes bei Vermietung bzw. Verkauf. Bitte beachten Sie hierzu unsere allgemeinen Geschäftsbedingungen die Sie unter www.der-immo-tip.de einsehen können.
Energieeffizienz
| Energieausweistyp: | Bedarfsausweis |
| Denkmalschutz: | Nein |
Kontakt

Objekt anfragen
while(allpics.length > 0){
allpics.pop();
}
var objnummer ="10176_03";var pic0 = new Image();pic0.src = 'uploads/pics/immo/1/fb179551-e184-4ba3-b9f1-d29220df9b60.jpg';
allpics.push('uploads/pics/immo/1/fb179551-e184-4ba3-b9f1-d29220df9b60.jpg');
var pic1 = new Image();pic1.src = 'uploads/pics/immo/1/_499587.jpg';
allpics.push('uploads/pics/immo/1/_499587.jpg');
var pic2 = new Image();pic2.src = 'uploads/pics/immo/1/_499589.jpg';
allpics.push('uploads/pics/immo/1/_499589.jpg');
var pic3 = new Image();pic3.src = 'uploads/pics/immo/1/_499591.jpg';
allpics.push('uploads/pics/immo/1/_499591.jpg');
Weitere Objekte zu Ihrer Suche
Erbbaurecht | 7.440 m² Lager-& Produktionsfläche mit Gleisanbindung und im Hafen in Dresden Friedrichstadt
Zur Vermietung oder Selbstnutzung - Immobilienpaket nahe Dresden | 14 Gewerbeeinheiten & 21 TG Stellplätze in Coswig zum Kauf
Helle 2-Zimmer-Wohnung in Kleinschachwitz | Eigennutzung oder Kapitalanlage | Balkon & TG-Stellplatz
Lager- und Produktionsflächen direkt an der S177 und S81 - unweit der Halbleiterindustrie - zum Kauf!
Zwei Sanierungsobjekte in ruhiger Lage von Dresden zum Kauf | Denkmalgeschützter Bauernhof + ehem. Gasthof
Helle 2-Zimmer-Wohnung in Kleinschachwitz | Eigennutzung oder Kapitalanlage | Balkon & TG-Stellplatz
Zur Vermietung oder Selbstnutzung - Immobilienpaket nahe Dresden | 14 Gewerbeeinheiten & 21 TG Stellplätze in Coswig zum Kauf
Direkt an der A4 nahe Dresden-Flughafen | Halle mit ca. 1.150 m² & Freifläche ca. 4.400 m² zum Kauf!
Kontakt
Telefonkontakt
| Immobilienmakler | |
| Dresden: | 0351 433 130 |
| Leipzig: | 0341 600 539 90 |
| Chemnitz: | 0371 238 710 600 |
| Hausverwaltung | |
| Dresden: | 0351 213 914 60 |
| Mietersprechzeiten | |
| Montag: | 09:00 - 12:00 Uhr 13:00 - 17:00 Uhr |
| Mittwoch: | 09:00 - 12:00 Uhr |
| Donnerstag: | 09:00 - 12:00 Uhr 13:00 - 15:30 Uhr |
































































































































































































































































































































































































































































































































































































































































