Ca. 3.760 m² Bürofläche in Leipzig zur Miete | Zentrumsnah
Eckdaten
| Objekt-ID: | 19896_01 |
| Lage: | 04105 Leipzig |
| Immobilienart: | Bürofläche |
| Etage: | 4 |
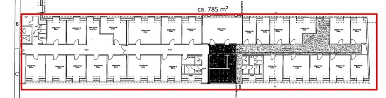
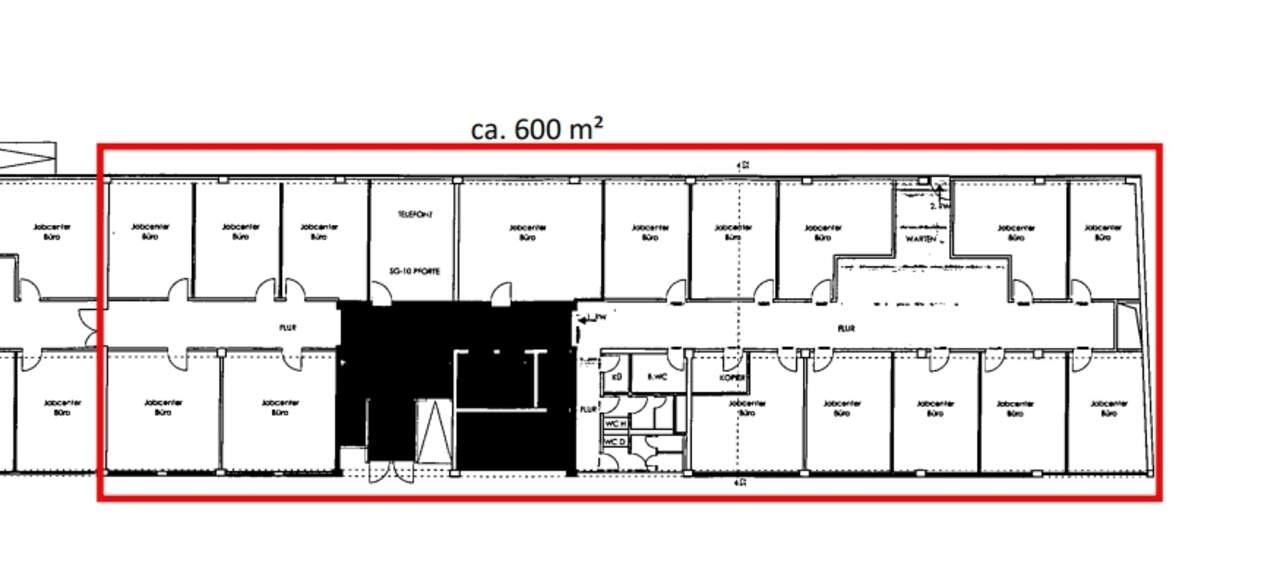
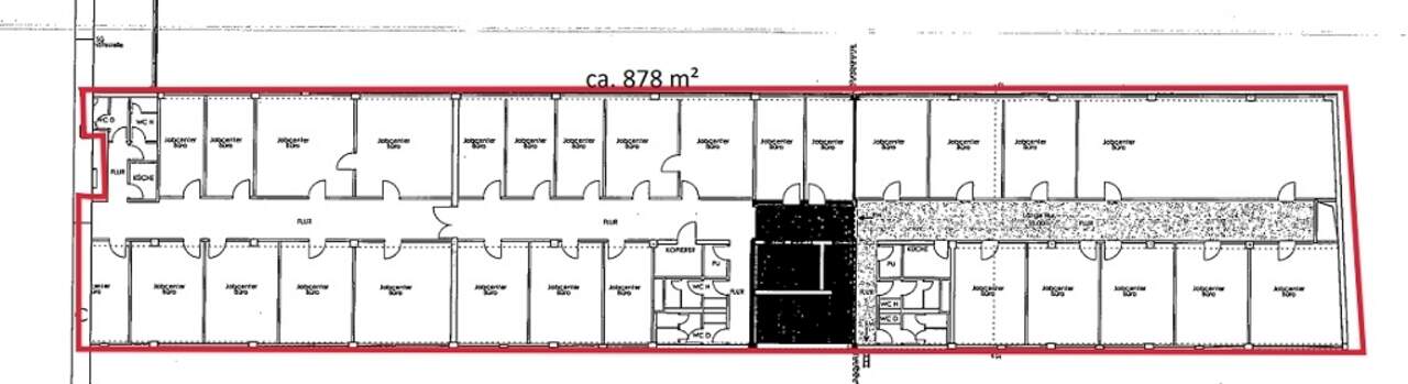
| Bürofläche: | ca. 3.760 m² |
| Gesamtfläche: | ca. 3.760 m² |
| Bezugstermin: | in Abstimmung |
| Nettokaltmiete/m²/Monat: | 10,00 € |
| Nebenkosten/m²/Monat: | 4,00 € |
Beschreibung
Zur Vermietung stehen bis zu 3.760 m² Bürofläche, die sich innerhalb einer Gewerbeimmobilie befinden und über mehrere Etagen erstrecken. Die Immobilie besteht aus zwei Bauteilen (Wohnen & Gewerbe).
Im Innenhof stehen den Besuchern PKW Stellplätze zur Verfügung. PKW Stellplätze für Mitarbeiter sowie Lagerflächen können im Untergeschoss angemietet werden.
Bei Interesse erhalten Sie gern weiterführende Informationen/ Unterlagen.
Im Innenhof stehen den Besuchern PKW Stellplätze zur Verfügung. PKW Stellplätze für Mitarbeiter sowie Lagerflächen können im Untergeschoss angemietet werden.
Bei Interesse erhalten Sie gern weiterführende Informationen/ Unterlagen.
Lage
Die Immobilie befindet sich in Leipzig im Stadtteil Zentrum Nord, fußläufig vom Hauptbahnhof entfernt.
Direkt vor dem Objekt gibt es Haltepunkte des ÖPNV. Die Autobahnen A9, A14 sowie A38 sind über die Bundesstraße B2 in wenigen Minuten erreichbar. Die Leipziger Innenstadt erreicht man in ca. 10 Gehminuten. Einkaufsmöglichkeiten sowie Geschäfte des täglichen Bedarfs befinden sich in unmittelbarer Umgebung.
Direkt vor dem Objekt gibt es Haltepunkte des ÖPNV. Die Autobahnen A9, A14 sowie A38 sind über die Bundesstraße B2 in wenigen Minuten erreichbar. Die Leipziger Innenstadt erreicht man in ca. 10 Gehminuten. Einkaufsmöglichkeiten sowie Geschäfte des täglichen Bedarfs befinden sich in unmittelbarer Umgebung.
Ausstattungsbeschreibung
- Aufzug (barrierefrei)
- helle Büroräume
- Teeküche mit EBK
- Kabelkanäle
- DSL-Anschluss
- antistatischer Teppichbelag
- Sonnenschutz/Schallschutz
- Isolierverglasung
- Tiefgarage/ Stellplätze im Freien
- kostenlose Gästeparkplätze im Innenhof
- Variable Raumgestaltung/Umbau nach Vorstellung des Mieters
- helle Büroräume
- Teeküche mit EBK
- Kabelkanäle
- DSL-Anschluss
- antistatischer Teppichbelag
- Sonnenschutz/Schallschutz
- Isolierverglasung
- Tiefgarage/ Stellplätze im Freien
- kostenlose Gästeparkplätze im Innenhof
- Variable Raumgestaltung/Umbau nach Vorstellung des Mieters
Sonstiges
Hinweis: Fehlende Angaben zum Energieausweis gemäß Energiesparverordnung 2014 ( EnEV ) begründen sich durch Nichtangabepflicht bei Denkmalschutzobjekten, Grundstücken, nichtbeheizbaren Immobilien oder wurden bisher trotz Aufforderung gegenüber dem Auftraggeber nicht zur Verfügung gestellt.
Haftungsausschluss: Trotz sorgfältiger Bearbeitung von Daten, Bildern und Informationen übernehmen wir keine Haftung für die Richtigkeit der Angaben, ebenso wenig für die Lieferfähigkeit des Angebotes bei Vermietung bzw. Verkauf. Bitte beachten Sie hierzu unsere allgemeinen Geschäftsbedingungen die Sie unter www.der-immo-tip.de einsehen können.
Haftungsausschluss: Trotz sorgfältiger Bearbeitung von Daten, Bildern und Informationen übernehmen wir keine Haftung für die Richtigkeit der Angaben, ebenso wenig für die Lieferfähigkeit des Angebotes bei Vermietung bzw. Verkauf. Bitte beachten Sie hierzu unsere allgemeinen Geschäftsbedingungen die Sie unter www.der-immo-tip.de einsehen können.
Energieeffizienz
| Energieausweistyp: | Verbrauchsausweis |
| Denkmalschutz: | Nein |
Kontakt

Objekt anfragen
while(allpics.length > 0){
allpics.pop();
}
var objnummer ="19896_01";var pic0 = new Image();pic0.src = 'uploads/pics/immo/1/_processed_/9/c/csm__464627_11b3147fb3.jpg';
allpics.push('uploads/pics/immo/1/_processed_/9/c/csm__464627_11b3147fb3.jpg');
var pic1 = new Image();pic1.src = 'uploads/pics/immo/1/_processed_/0/1/csm__464629_63728e18a0.jpg';
allpics.push('uploads/pics/immo/1/_processed_/0/1/csm__464629_63728e18a0.jpg');
var pic2 = new Image();pic2.src = 'uploads/pics/immo/1/_processed_/3/2/csm__464631_de92641126.jpg';
allpics.push('uploads/pics/immo/1/_processed_/3/2/csm__464631_de92641126.jpg');
var pic3 = new Image();pic3.src = 'uploads/pics/immo/1/_processed_/7/6/csm__464633_b67660c9da.jpg';
allpics.push('uploads/pics/immo/1/_processed_/7/6/csm__464633_b67660c9da.jpg');
var pic4 = new Image();pic4.src = 'uploads/pics/immo/1/_processed_/0/7/csm__464635_6c6618f0d0.jpg';
allpics.push('uploads/pics/immo/1/_processed_/0/7/csm__464635_6c6618f0d0.jpg');
var pic5 = new Image();pic5.src = 'uploads/pics/immo/1/_processed_/1/b/csm__464637_79fa593943.jpg';
allpics.push('uploads/pics/immo/1/_processed_/1/b/csm__464637_79fa593943.jpg');
var pic6 = new Image();pic6.src = 'uploads/pics/immo/1/_processed_/7/a/csm__464639_a0513cf790.jpg';
allpics.push('uploads/pics/immo/1/_processed_/7/a/csm__464639_a0513cf790.jpg');
var pic7 = new Image();pic7.src = 'uploads/pics/immo/1/_processed_/f/0/csm__464641_df832686f5.jpg';
allpics.push('uploads/pics/immo/1/_processed_/f/0/csm__464641_df832686f5.jpg');
var pic8 = new Image();pic8.src = 'uploads/pics/immo/1/_processed_/c/6/csm__464643_499a6189fc.jpg';
allpics.push('uploads/pics/immo/1/_processed_/c/6/csm__464643_499a6189fc.jpg');
var pic9 = new Image();pic9.src = 'uploads/pics/immo/1/_processed_/d/6/csm__464645_a8a6300db1.jpg';
allpics.push('uploads/pics/immo/1/_processed_/d/6/csm__464645_a8a6300db1.jpg');
var pic10 = new Image();pic10.src = 'uploads/pics/immo/1/_processed_/c/1/csm__464647_c02bade01d.jpg';
allpics.push('uploads/pics/immo/1/_processed_/c/1/csm__464647_c02bade01d.jpg');
var pic11 = new Image();pic11.src = 'uploads/pics/immo/1/_processed_/5/2/csm__464649_a3220505fb.jpg';
allpics.push('uploads/pics/immo/1/_processed_/5/2/csm__464649_a3220505fb.jpg');
var pic12 = new Image();pic12.src = 'uploads/pics/immo/1/_processed_/9/4/csm__464651_e70707b2e5.jpg';
allpics.push('uploads/pics/immo/1/_processed_/9/4/csm__464651_e70707b2e5.jpg');
var pic13 = new Image();pic13.src = 'uploads/pics/immo/1/_processed_/0/6/csm__464653_57ba7366fa.jpg';
allpics.push('uploads/pics/immo/1/_processed_/0/6/csm__464653_57ba7366fa.jpg');
var pic14 = new Image();pic14.src = 'uploads/pics/immo/1/_processed_/2/c/csm__464655_6d17d397ca.jpg';
allpics.push('uploads/pics/immo/1/_processed_/2/c/csm__464655_6d17d397ca.jpg');
var pic15 = new Image();pic15.src = 'uploads/pics/immo/1/_processed_/2/d/csm__464657_93008db95d.jpg';
allpics.push('uploads/pics/immo/1/_processed_/2/d/csm__464657_93008db95d.jpg');
var pic16 = new Image();pic16.src = 'uploads/pics/immo/1/_processed_/3/e/csm__464659_abb8009675.jpg';
allpics.push('uploads/pics/immo/1/_processed_/3/e/csm__464659_abb8009675.jpg');
var pic17 = new Image();pic17.src = 'uploads/pics/immo/1/_processed_/2/4/csm__464661_36fcb4730e.jpg';
allpics.push('uploads/pics/immo/1/_processed_/2/4/csm__464661_36fcb4730e.jpg');
var pic18 = new Image();pic18.src = 'uploads/pics/immo/1/_processed_/1/4/csm__464663_7522ed3e85.jpg';
allpics.push('uploads/pics/immo/1/_processed_/1/4/csm__464663_7522ed3e85.jpg');
var pic19 = new Image();pic19.src = 'uploads/pics/immo/1/_processed_/8/3/csm__464665_84f6cc66d1.jpg';
allpics.push('uploads/pics/immo/1/_processed_/8/3/csm__464665_84f6cc66d1.jpg');
Weitere Objekte zu Ihrer Suche
Kontakt
Telefonkontakt
| Immobilienmakler | |
| Dresden: | 0351 433 130 |
| Leipzig: | 0341 600 539 90 |
| Chemnitz: | 0371 238 710 600 |
| Hausverwaltung | |
| Dresden: | 0351 213 914 60 |
| Mietersprechzeiten | |
| Montag: | 09:00 - 12:00 Uhr 13:00 - 17:00 Uhr |
| Mittwoch: | 09:00 - 12:00 Uhr |
| Donnerstag: | 09:00 - 12:00 Uhr 13:00 - 15:30 Uhr |







































































































