Ca. 350 m² Bürofläche in Dippoldiswalde zur Miete | ab sofort verfügbar
Eckdaten
| Objekt-ID: | 25060_07 |
| Lage: | 01762 Schmiedeberg |
| Immobilienart: | Bürofläche |
| Etage: | 1 |
| Bürofläche: | ca. 350 m² |
| Gesamtfläche: | ca. 350 m² |
| Bezugstermin: | ab sofort |
| Nettokaltmiete/m²/Monat: | 3,80 € |
| Mieterprovision: | 1,19 Nettokaltmieten inkl. MwSt. |
Beschreibung
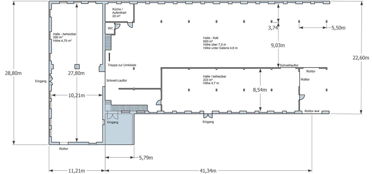
Zur Vermietung steht eine ca. 350 m² große Bürofläche, die sich innerhalb eines Gewerbeareals befindet.
In dem Areal gibt es zusätzlich die Möglichkeit zwischen 800 m² und 1.400 m² Hallenfläche anzumieten.
Bei Interesse stimmen wir gern einen Besichtigungstermin ab.
In dem Areal gibt es zusätzlich die Möglichkeit zwischen 800 m² und 1.400 m² Hallenfläche anzumieten.
Bei Interesse stimmen wir gern einen Besichtigungstermin ab.
Lage
Die Immobilie befindet sich in Schmiedeberg, direkt an der B 170, innerhalb eines Gewerbegebietes.
Schmiedeberg ist ein Ortsteil der sächsischen Großen Kreisstadt Dippoldiswalde im Landkreis Sächsische Schweiz-Osterzgebirge und befindet sich etwa 23 km südlich der Landeshauptstadt Dresden und etwa sechs km südlich des Stadtzentrums von Dippoldiswalde.
Die B 170 führt durch den Ort. Hier zweigt die B 171 Richtung Marienberg ab. Etwa 20 km südlich liegt die Grenze zur Tschechischen Republik.
Dippoldiswalde ist eine Große Kreisstadt im Landkreis Sächsische Schweiz-Osterzgebirge in Sachsen. Die Stadt ist zentral im Osterzgebirge gelegen und befindet sich etwa 20 Kilometer südlich von Dresden auf halbem Weg zwischen der Grenze zu Tschechien und der Landeshauptstadt. Im Landkreis bildet Dippoldiswalde mit seinen etwa 14.000 Einwohnern eines der drei Mittelzentren.
Schmiedeberg ist ein Ortsteil der sächsischen Großen Kreisstadt Dippoldiswalde im Landkreis Sächsische Schweiz-Osterzgebirge und befindet sich etwa 23 km südlich der Landeshauptstadt Dresden und etwa sechs km südlich des Stadtzentrums von Dippoldiswalde.
Die B 170 führt durch den Ort. Hier zweigt die B 171 Richtung Marienberg ab. Etwa 20 km südlich liegt die Grenze zur Tschechischen Republik.
Dippoldiswalde ist eine Große Kreisstadt im Landkreis Sächsische Schweiz-Osterzgebirge in Sachsen. Die Stadt ist zentral im Osterzgebirge gelegen und befindet sich etwa 20 Kilometer südlich von Dresden auf halbem Weg zwischen der Grenze zu Tschechien und der Landeshauptstadt. Im Landkreis bildet Dippoldiswalde mit seinen etwa 14.000 Einwohnern eines der drei Mittelzentren.
Ausstattungsbeschreibung
* werden aktuell aufbereitet und gestrichen
* Fußbodenheizung
* Klimaanlage
* Einbauküche
* separate WCs
* separater Serverraum
* Fußbodenheizung
* Klimaanlage
* Einbauküche
* separate WCs
* separater Serverraum
Sonstiges
Fehlende Angaben zum Energieausweis gemäß Energiesparverordnung 2014 ( EnEV ) begründen sich durch Nichtangabepflicht bei Denkmalschutzobjekten, Grundstücken, nichtbeheizbaren Immobilien oder wurden bisher trotz Aufforderung gegenüber dem Auftraggeber nicht zur Verfügung gestellt.
Haftungsausschluss: Trotz sorgfältiger Bearbeitung von Daten, Bildern und Informationen übernehmen wir keine Haftung für die Richtigkeit der Angaben, ebenso wenig für die Lieferfähigkeit des Angebotes bei Vermietung bzw. Verkauf. Bitte beachten Sie hierzu unsere allgemeinen Geschäftsbedingungen die Sie unter www.der-immo-tip.de einsehen können.
Haftungsausschluss: Trotz sorgfältiger Bearbeitung von Daten, Bildern und Informationen übernehmen wir keine Haftung für die Richtigkeit der Angaben, ebenso wenig für die Lieferfähigkeit des Angebotes bei Vermietung bzw. Verkauf. Bitte beachten Sie hierzu unsere allgemeinen Geschäftsbedingungen die Sie unter www.der-immo-tip.de einsehen können.
Kontakt

Objekt anfragen
while(allpics.length > 0){
allpics.pop();
}
var objnummer ="25060_07";var pic0 = new Image();pic0.src = 'uploads/pics/immo/1/_processed_/c/7/csm__472455_7ad8ad3030.jpg';
allpics.push('uploads/pics/immo/1/_processed_/c/7/csm__472455_7ad8ad3030.jpg');
var pic1 = new Image();pic1.src = 'uploads/pics/immo/1/_processed_/6/3/csm__472457_73fde18124.jpg';
allpics.push('uploads/pics/immo/1/_processed_/6/3/csm__472457_73fde18124.jpg');
var pic2 = new Image();pic2.src = 'uploads/pics/immo/1/_processed_/b/b/csm__472459_fcc05b62ab.jpg';
allpics.push('uploads/pics/immo/1/_processed_/b/b/csm__472459_fcc05b62ab.jpg');
var pic3 = new Image();pic3.src = 'uploads/pics/immo/1/_processed_/3/d/csm__472461_e68d3abcd3.jpg';
allpics.push('uploads/pics/immo/1/_processed_/3/d/csm__472461_e68d3abcd3.jpg');
var pic4 = new Image();pic4.src = 'uploads/pics/immo/1/_processed_/1/5/csm__472463_53ad7f2b64.jpg';
allpics.push('uploads/pics/immo/1/_processed_/1/5/csm__472463_53ad7f2b64.jpg');
var pic5 = new Image();pic5.src = 'uploads/pics/immo/1/_processed_/5/b/csm__472465_015d3dde96.jpg';
allpics.push('uploads/pics/immo/1/_processed_/5/b/csm__472465_015d3dde96.jpg');
var pic6 = new Image();pic6.src = 'uploads/pics/immo/1/_processed_/4/7/csm__472467_601661e3bf.jpg';
allpics.push('uploads/pics/immo/1/_processed_/4/7/csm__472467_601661e3bf.jpg');
Weitere Objekte zu Ihrer Suche
Helle 2-Zimmer-Wohnung in Kleinschachwitz | Eigennutzung oder Kapitalanlage | Balkon & TG-Stellplatz
Zur Vermietung oder Selbstnutzung - Immobilienpaket nahe Dresden | 14 Gewerbeeinheiten & 21 TG Stellplätze in Coswig zum Kauf
Zur Vermietung oder Selbstnutzung - Immobilienpaket nahe Dresden | 14 Gewerbeeinheiten & 21 TG Stellplätze in Coswig zum Kauf
Erbbaurecht | 7.440 m² Lager-& Produktionsfläche mit Gleisanbindung und im Hafen in Dresden Friedrichstadt
Helle 2-Zimmer-Wohnung in Kleinschachwitz | Eigennutzung oder Kapitalanlage | Balkon & TG-Stellplatz
Lager- und Produktionsflächen direkt an der S177 und S81 - unweit der Halbleiterindustrie - zum Kauf!
Lager- und Produktionsflächen direkt an der S177 und S81 - unweit der Halbleiterindustrie - zum Kauf!
Zwei Sanierungsobjekte in ruhiger Lage von Dresden zum Kauf | Denkmalgeschützter Bauernhof + ehem. Gasthof
Kontakt
Telefonkontakt
| Immobilienmakler | |
| Dresden: | 0351 433 130 |
| Leipzig: | 0341 600 539 90 |
| Chemnitz: | 0371 238 710 600 |
| Hausverwaltung | |
| Dresden: | 0351 213 914 60 |
| Mietersprechzeiten | |
| Montag: | 09:00 - 12:00 Uhr 13:00 - 17:00 Uhr |
| Mittwoch: | 09:00 - 12:00 Uhr |
| Donnerstag: | 09:00 - 12:00 Uhr 13:00 - 15:30 Uhr |






















































































































































































































































































































































































































































