Bürohaus - zur Entwicklung und Vermietung - Bankgebäude in Chemnitz kaufen
barrierefrei Fliesen Teppichboden Personenfahrstuhl klimatisiert Einbauküche Keller Alarmanlage Freiparkplatz Teeküche Balkon/Terrasse
Eckdaten
| Objekt-ID: | 66074 |
| Lage: | 09127 Chemnitz |
| Immobilienart: | Bürogebäude (Invest.) |
| Zimmer: | 87 |
| Grundstücksfläche: | ca. 1.200 m² |
| Nutzfläche: | ca. 2.170 m² |
| Bürofläche: | ca. 2.170 m² |
| Gesamtfläche: | ca. 2.170 m² |
| Baujahr: | 1900 |
| Kaufpreis: | 1.950.000,00 € |
| Kaufpreis/m²: | 898,62 € |
| Käuferprovision: | 5,95% |
| Anzahl Parkflächen: | 10 |
| Mieteinnahmen (Soll): | 15.000,00 € |
Beschreibung
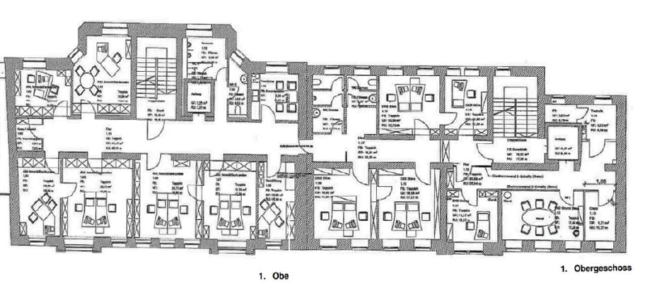
Das Gebäude Augustusburger Straße 22 wurde 1888 errichtet und 1992 saniert. Das Gebäude Augustusburger Straße 26 wurde 1910 errichtet und 1997 saniert. Eine Hausnummer 24 gibt es heute nicht bzw. nicht mehr. Beide Häuser werden von einer gemeinsamen Fernwärmestation beheizt. Der Energieverbrauch liegt bei sehr guten 83kwh/m²a (2010). Das Objekt wurde vollumfänglich von der DKB genutzt und wurde freigezogen. Beide Häuser sind in kleingliedrige Büroflächen struturiert. Die Häuser sind intern verbunden, können bei Bedarf auch Etagen - und Hausweise getrennt werden. Im Haus 22 befinden sich im Dachgeschoss 3 Wohnungen, die ohne Mietvertrag sind. Im Dachgeschoss der 26 befindet sich eine Terrasse sowie ein modernes Konferenzcenter. Beide Häuser verfügen über neuwertige Aufzüge. Beide Häuser sind barrierefrei bis barrierearm und teilweise mit Möbel und Küchen möbliert. Im Hof befinden sich etwa 10 Parkplätze. Weitere Parkplätze können in umliegenden Tiefgaragen angemietet werden. Das Objekt ist als Firmenzentrale sowie zur Vermietung in kleinere Einheiten gut geeignet. Bitte fordern Sie die beiden Gutachten an.
Lage
Mit ca. 245.000 Einwohnern ist die zum Sachsendreieck zählende Stadt Chemnitz das wirtschaftliche Oberzentrum und für die Region Südwestsachsen der wirtschaftliche und kulturelle Mittelpunkt für ca. 1 Million Menschen. Neben Berlin gehört die Region Südwestsachsen mit einer Bevölkerungsdichte von 700 Einwohner / km² zu den Bevölkerungsreichsten in den neuen Bundesländern.
Das Objekt befindet sich im Stadtzentrum. Im unmittelbaren Umfeld befinden sich fußläufig entfernt Büro - und Geschäftshäuser sowie Wohngebäude und Handelsflächen. Das Stadtzentrum profitiert zunehmend vom Zentrenkonzept der Stadt. Das macht sich durch stetig steigende Frequentierung bemerkbar. Im Stadtzentrum befinden sich alle wichtigen Behörden, die Galerie Roter Turm sowie sie Zentralhaltestelle und viele Parkhäuser.
ÖPNV: direkt vor dem Objekt
Bahnhof: fußläufig 10 Minuten
Einkaufsmarkt Edeka Simmel: neben dem Objekt
Das Objekt befindet sich im Stadtzentrum. Im unmittelbaren Umfeld befinden sich fußläufig entfernt Büro - und Geschäftshäuser sowie Wohngebäude und Handelsflächen. Das Stadtzentrum profitiert zunehmend vom Zentrenkonzept der Stadt. Das macht sich durch stetig steigende Frequentierung bemerkbar. Im Stadtzentrum befinden sich alle wichtigen Behörden, die Galerie Roter Turm sowie sie Zentralhaltestelle und viele Parkhäuser.
ÖPNV: direkt vor dem Objekt
Bahnhof: fußläufig 10 Minuten
Einkaufsmarkt Edeka Simmel: neben dem Objekt
Sonstiges
Weitere Angebote finden Sie unter www.der-immo-tip.de
Haftungsausschluss: Trotz sorgfältiger Bearbeitung von Daten, Bildern und Informationen übernehmen wir keine Haftung für die Richtigkeit der Angaben, ebenso wenig für die Lieferfähigkeit des Angebotes bei Vermietung bzw. Verkauf. Bitte beachten Sie hierzu unsere allgemeinen Geschäftsbedingungen die Sie unter www.der-immo-tip.de einsehen können.
Haftungsausschluss: Trotz sorgfältiger Bearbeitung von Daten, Bildern und Informationen übernehmen wir keine Haftung für die Richtigkeit der Angaben, ebenso wenig für die Lieferfähigkeit des Angebotes bei Vermietung bzw. Verkauf. Bitte beachten Sie hierzu unsere allgemeinen Geschäftsbedingungen die Sie unter www.der-immo-tip.de einsehen können.
Energieeffizienz
| Energieausweistyp: | Verbrauchsausweis |
| Heizungsart: | Fernwärme |
| Befeuerungsart: | Fernwärme Dampf |
| Wärmewert: | 83.00 kWh/(m² a) |
| Denkmalschutz: | Ja |
Kontakt

Objekt anfragen
while(allpics.length > 0){
allpics.pop();
}
var objnummer ="66074";var pic0 = new Image();pic0.src = 'uploads/pics/immo/1/_processed_/6/c/csm_66074-a_ansicht_93fece2e72.jpg';
allpics.push('uploads/pics/immo/1/_processed_/6/c/csm_66074-a_ansicht_93fece2e72.jpg');
var pic1 = new Image();pic1.src = 'uploads/pics/immo/1/_processed_/8/b/csm_66074-b1_ansicht_2e9c3741fb.jpg';
allpics.push('uploads/pics/immo/1/_processed_/8/b/csm_66074-b1_ansicht_2e9c3741fb.jpg');
var pic2 = new Image();pic2.src = 'uploads/pics/immo/1/_processed_/7/6/csm_66074-b2_ansicht_c241f2b685.jpg';
allpics.push('uploads/pics/immo/1/_processed_/7/6/csm_66074-b2_ansicht_c241f2b685.jpg');
var pic3 = new Image();pic3.src = 'uploads/pics/immo/1/_processed_/d/6/csm_66074-b3_konferenz_und_terrasse_d4cc366de7.jpg';
allpics.push('uploads/pics/immo/1/_processed_/d/6/csm_66074-b3_konferenz_und_terrasse_d4cc366de7.jpg');
var pic4 = new Image();pic4.src = 'uploads/pics/immo/1/_processed_/5/a/csm_66074-b4_kueche_konferenzflaeche_265155f86d.jpg';
allpics.push('uploads/pics/immo/1/_processed_/5/a/csm_66074-b4_kueche_konferenzflaeche_265155f86d.jpg');
var pic5 = new Image();pic5.src = 'uploads/pics/immo/1/_processed_/4/7/csm_66074-b5_empfang_eg_f3cbdbed7c.jpg';
allpics.push('uploads/pics/immo/1/_processed_/4/7/csm_66074-b5_empfang_eg_f3cbdbed7c.jpg');
var pic6 = new Image();pic6.src = 'uploads/pics/immo/1/_processed_/3/4/csm_66074-b6_konferenzzentrum_im_dg_687c3a81e7.jpg';
allpics.push('uploads/pics/immo/1/_processed_/3/4/csm_66074-b6_konferenzzentrum_im_dg_687c3a81e7.jpg');
var pic7 = new Image();pic7.src = 'uploads/pics/immo/1/_processed_/5/8/csm_66074-b7_konferenzzentrum_dg_2062010e6d.jpg';
allpics.push('uploads/pics/immo/1/_processed_/5/8/csm_66074-b7_konferenzzentrum_dg_2062010e6d.jpg');
var pic8 = new Image();pic8.src = 'uploads/pics/immo/1/_processed_/d/4/csm_66074-b8_grundriss_1.og_77fb044590.jpg';
allpics.push('uploads/pics/immo/1/_processed_/d/4/csm_66074-b8_grundriss_1.og_77fb044590.jpg');
var pic9 = new Image();pic9.src = 'uploads/pics/immo/1/_processed_/c/e/csm_66074-b9_haus_26_eg_grundriss_4541550f63.jpg';
allpics.push('uploads/pics/immo/1/_processed_/c/e/csm_66074-b9_haus_26_eg_grundriss_4541550f63.jpg');
var pic10 = new Image();pic10.src = 'uploads/pics/immo/1/_processed_/d/4/csm_66074-b10_haus_22_grundriss_eg_6e736f326c.jpg';
allpics.push('uploads/pics/immo/1/_processed_/d/4/csm_66074-b10_haus_22_grundriss_eg_6e736f326c.jpg');
var pic11 = new Image();pic11.src = 'uploads/pics/immo/1/_processed_/d/d/csm_66074-b11_rueckansicht_c2036efa0d.jpg';
allpics.push('uploads/pics/immo/1/_processed_/d/d/csm_66074-b11_rueckansicht_c2036efa0d.jpg');
var pic12 = new Image();pic12.src = 'uploads/pics/immo/1/_processed_/6/e/csm_66074-b12_wc_haus_22_c6f57c6c0d.jpg';
allpics.push('uploads/pics/immo/1/_processed_/6/e/csm_66074-b12_wc_haus_22_c6f57c6c0d.jpg');
var pic13 = new Image();pic13.src = 'uploads/pics/immo/1/_processed_/8/8/csm_66074-b13_aufzug_c7fdb2d3e9.jpg';
allpics.push('uploads/pics/immo/1/_processed_/8/8/csm_66074-b13_aufzug_c7fdb2d3e9.jpg');
var pic14 = new Image();pic14.src = 'uploads/pics/immo/1/_processed_/c/d/csm_66074-b14_buero_gross_haus_22_0ec3905702.jpg';
allpics.push('uploads/pics/immo/1/_processed_/c/d/csm_66074-b14_buero_gross_haus_22_0ec3905702.jpg');
var pic15 = new Image();pic15.src = 'uploads/pics/immo/1/_processed_/c/8/csm_66074-b15_zaehler_elektro_ad48964ae1.jpg';
allpics.push('uploads/pics/immo/1/_processed_/c/8/csm_66074-b15_zaehler_elektro_ad48964ae1.jpg');
var pic16 = new Image();pic16.src = 'uploads/pics/immo/1/_processed_/6/6/csm_66074-b16_fernwaerme_im_kg_8dfd0b4960.jpg';
allpics.push('uploads/pics/immo/1/_processed_/6/6/csm_66074-b16_fernwaerme_im_kg_8dfd0b4960.jpg');
var pic17 = new Image();pic17.src = 'uploads/pics/immo/1/_processed_/3/d/csm_66074-b17_buero_haus_26_b82a0dff28.jpg';
allpics.push('uploads/pics/immo/1/_processed_/3/d/csm_66074-b17_buero_haus_26_b82a0dff28.jpg');
var pic18 = new Image();pic18.src = 'uploads/pics/immo/1/_processed_/2/0/csm_66074-b18_buero_gross_haus_26_14f869cf3b.jpg';
allpics.push('uploads/pics/immo/1/_processed_/2/0/csm_66074-b18_buero_gross_haus_26_14f869cf3b.jpg');
var pic19 = new Image();pic19.src = 'uploads/pics/immo/1/_processed_/7/1/csm_66074-b19_buero_haus_26_ec77217dc6.jpg';
allpics.push('uploads/pics/immo/1/_processed_/7/1/csm_66074-b19_buero_haus_26_ec77217dc6.jpg');
Weitere Objekte zu Ihrer Suche
Kontakt
Telefonkontakt
| Immobilienmakler | |
| Dresden: | 0351 433 130 |
| Leipzig: | 0341 600 539 90 |
| Chemnitz: | 0371 238 710 600 |
| Hausverwaltung | |
| Dresden: | 0351 213 914 60 |
| Mietersprechzeiten | |
| Montag: | 09:00 - 12:00 Uhr 13:00 - 17:00 Uhr |
| Mittwoch: | 09:00 - 12:00 Uhr |
| Donnerstag: | 09:00 - 12:00 Uhr 13:00 - 15:30 Uhr |
























