Bürofläche in TOP-Lage mit Stellplätzen mieten!
Eckdaten
| Objekt-ID: | 6560_07 |
| Lage: | 01067 Dresden |
| Immobilienart: | Bürofläche |
| Etage: | 3 |
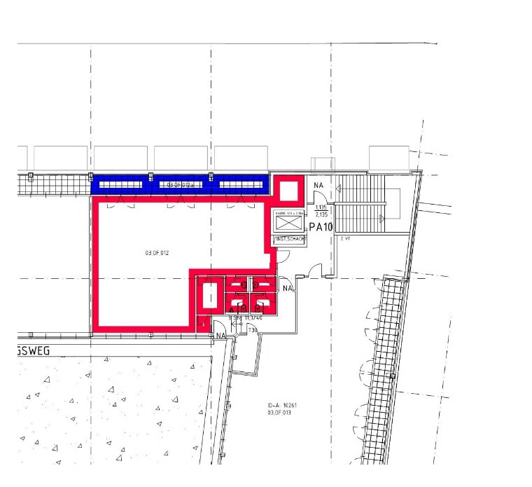
| Bürofläche: | ca. 167 m² |
| Gesamtfläche: | ca. 167 m² |
| Baujahr: | 2003 |
| Bezugstermin: | kurzfristig |
| Nettokaltmiete/m²/Monat: | 14,00 € |
| Nebenkosten/m²/Monat: | 501,00 € |
Beschreibung
Zur Vermietung steht eine ca. 167 m² große Bürofläche mit Terrasse im 3. Obergeschoss der Altmarkt-Galerie, einem der größten innerstädtischen Einkaufszentren Dresdens. Die Fläche besticht durch ihre zentrale und repräsentative Lage mitten in der Innenstadt.
Die Mietkonditionen richten sich entsprechend nach dem gewünschten Aus- und Umbau sowie der vereinbarten Vertragslaufzeit.
Für zusätzlichen Komfort sorgen die Parkmöglichkeiten in der hauseigenen Tiefgarage.
Bei Interesse stimmen wir gern einen Besichtigungstermin ab.
Die Mietkonditionen richten sich entsprechend nach dem gewünschten Aus- und Umbau sowie der vereinbarten Vertragslaufzeit.
Für zusätzlichen Komfort sorgen die Parkmöglichkeiten in der hauseigenen Tiefgarage.
Bei Interesse stimmen wir gern einen Besichtigungstermin ab.
Lage
* befindet sich im Stadtzentrum von Dresden
* direkt am Altmarkt
* zahlreiche Einkaufsmöglichkeiten
* nahe historischen Sehenswürdigkeiten
* Haltepunkte des ÖPNV fußläufig
* ca. 7 Autominuten bis Hauptbahnhof
* ca. 14 Autominuten bis A4/ A17
* ca. 25 Autominuten zu Flughafen Dresden
* direkt am Altmarkt
* zahlreiche Einkaufsmöglichkeiten
* nahe historischen Sehenswürdigkeiten
* Haltepunkte des ÖPNV fußläufig
* ca. 7 Autominuten bis Hauptbahnhof
* ca. 14 Autominuten bis A4/ A17
* ca. 25 Autominuten zu Flughafen Dresden
Ausstattungsbeschreibung
* Loftcharakter
* helle Räume
* Einbauküche kann übernommen werden
* Aufzug
* mit Terrasse
* getrennter Sanitärbereich
* zentrale Be- und Entlüftungsanlage
* Tiefgarage
* helle Räume
* Einbauküche kann übernommen werden
* Aufzug
* mit Terrasse
* getrennter Sanitärbereich
* zentrale Be- und Entlüftungsanlage
* Tiefgarage
Sonstiges
Hinweis: Fehlende Angaben zum Energieausweis gemäß Energiesparverordnung 2014 ( EnEV ) begründen sich durch Nichtangabepflicht bei Denkmalschutzobjekten, Grundstücken, nichtbeheizbaren Immobilien oder wurden bisher trotz Aufforderung gegenüber dem Auftraggeber nicht zur Verfügung gestellt.
Haftungsausschluss: Trotz sorgfältiger Bearbeitung von Daten, Bildern und Informationen übernehmen wir keine Haftung für die Richtigkeit der Angaben, ebenso wenig für die Lieferfähigkeit des Angebotes bei Vermietung bzw. Verkauf. Bitte beachten Sie hierzu unsere allgemeinen Geschäftsbedingungen die Sie unter www.der-immo-tip.de einsehen können.
Haftungsausschluss: Trotz sorgfältiger Bearbeitung von Daten, Bildern und Informationen übernehmen wir keine Haftung für die Richtigkeit der Angaben, ebenso wenig für die Lieferfähigkeit des Angebotes bei Vermietung bzw. Verkauf. Bitte beachten Sie hierzu unsere allgemeinen Geschäftsbedingungen die Sie unter www.der-immo-tip.de einsehen können.
Kontakt

Objekt anfragen
while(allpics.length > 0){
allpics.pop();
}
var objnummer ="6560_07";var pic0 = new Image();pic0.src = 'uploads/pics/immo/1/c2e589ca-64c6-452c-92b8-30cd7a306f39.jpg';
allpics.push('uploads/pics/immo/1/c2e589ca-64c6-452c-92b8-30cd7a306f39.jpg');
var pic1 = new Image();pic1.src = 'uploads/pics/immo/1/_490783.jpg';
allpics.push('uploads/pics/immo/1/_490783.jpg');
var pic2 = new Image();pic2.src = 'uploads/pics/immo/1/_490785.jpg';
allpics.push('uploads/pics/immo/1/_490785.jpg');
var pic3 = new Image();pic3.src = 'uploads/pics/immo/1/_490787.jpg';
allpics.push('uploads/pics/immo/1/_490787.jpg');
var pic4 = new Image();pic4.src = 'uploads/pics/immo/1/_490789.jpg';
allpics.push('uploads/pics/immo/1/_490789.jpg');
var pic5 = new Image();pic5.src = 'uploads/pics/immo/1/_490791.jpg';
allpics.push('uploads/pics/immo/1/_490791.jpg');
Weitere Objekte zu Ihrer Suche
Erbbaurecht | 7.440 m² Lager-& Produktionsfläche mit Gleisanbindung und im Hafen in Dresden Friedrichstadt
Lager- und Produktionsflächen direkt an der S177 und S81 - unweit der Halbleiterindustrie - zum Kauf!
Zur Vermietung oder Selbstnutzung - Immobilienpaket nahe Dresden | 14 Gewerbeeinheiten & 21 TG Stellplätze in Coswig zum Kauf
Zwei Sanierungsobjekte in ruhiger Lage von Dresden zum Kauf | Denkmalgeschützter Bauernhof + ehem. Gasthof
Zur Vermietung oder Selbstnutzung - Immobilienpaket nahe Dresden | 14 Gewerbeeinheiten & 21 TG Stellplätze in Coswig zum Kauf
Lager- und Produktionsflächen direkt an der S177 und S81 - unweit der Halbleiterindustrie - zum Kauf!
Helle 2-Zimmer-Wohnung in Kleinschachwitz | Eigennutzung oder Kapitalanlage | Balkon & TG-Stellplatz
Kontakt
Telefonkontakt
| Immobilienmakler | |
| Dresden: | 0351 433 130 |
| Leipzig: | 0341 600 539 90 |
| Chemnitz: | 0371 238 710 600 |
| Hausverwaltung | |
| Dresden: | 0351 213 914 60 |
| Mietersprechzeiten | |
| Montag: | 09:00 - 12:00 Uhr 13:00 - 17:00 Uhr |
| Mittwoch: | 09:00 - 12:00 Uhr |
| Donnerstag: | 09:00 - 12:00 Uhr 13:00 - 15:30 Uhr |






















































































































































































































































































































































































































































































































































































































































































