Büro und Lager kombiniert – Gewerbeobjekt in Dresden Äußere Neustadt zu vermieten
Eckdaten
| Objekt-ID: | 24248_03 |
| Lage: | 01099 Dresden |
| Immobilienart: | Lager |
| Lagerfläche: | ca. 440 m² |
| Bürofläche: | ca. 405 m² |
| Gesamtfläche: | ca. 845 m² |
| Bezugstermin: | ab sofort |
| Nettokaltmiete/m²/Monat: | 9,90 € |
| Nebenkosten/m²/Monat: | 2.957,05 € |
Beschreibung
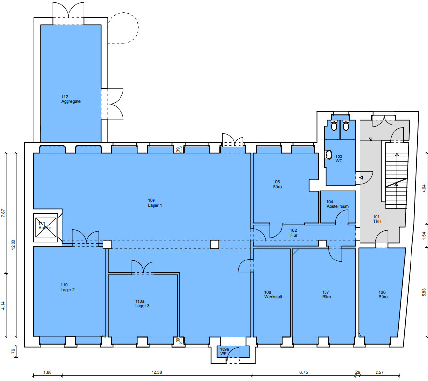
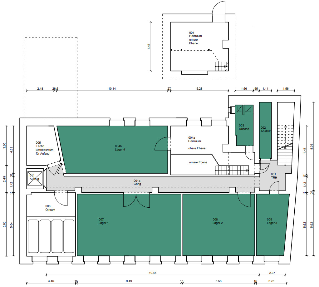
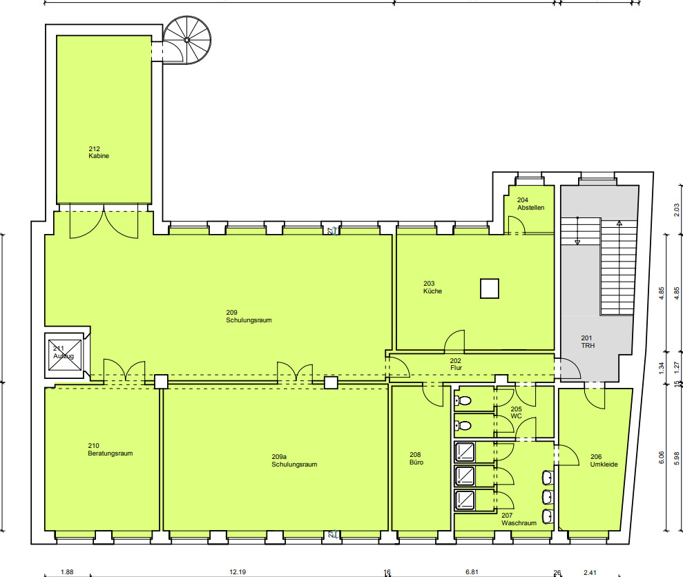
Zur Vermietung steht ein vielfältig nutzbares Büro- und Lagergebäude mit einer Gesamtmietfläche von ca. 845 m², die sich auf drei Ebenen verteilt (Kellergeschoss, Erdgeschoss und 1. Obergeschoss).
Die Gesamtfläche setzt sich aus 776,41 m² (MF-GIF-1) sowie 68,46 m² (MF-GIF-2) zusammen und gliedert sich wie folgt:
Kellergeschoss – ca. 174 m² (Lagerfläche)
Erdgeschoss – ca. 355 m² (Lager- und Bürofläche)
1. Obergeschoss – ca. 336 m² (Büro- und Schulungsräume)
Zwei separate Eingänge bieten dabei zusätzliche Flexibilität.
Im Innenhof stehen PKW-Stellplätze zur Verfügung, die optional für monatlich 70,00 EUR zzgl. MwSt. pro Stellplatz hinzugemietet werden können.
Die Immobilie ist ab sofort verfügbar. Besichtigungen sind jederzeit nach vorheriger Vereinbarung möglich – wir freuen uns auf Ihre Kontaktaufnahme!
Die Gesamtfläche setzt sich aus 776,41 m² (MF-GIF-1) sowie 68,46 m² (MF-GIF-2) zusammen und gliedert sich wie folgt:
Kellergeschoss – ca. 174 m² (Lagerfläche)
Erdgeschoss – ca. 355 m² (Lager- und Bürofläche)
1. Obergeschoss – ca. 336 m² (Büro- und Schulungsräume)
Zwei separate Eingänge bieten dabei zusätzliche Flexibilität.
Im Innenhof stehen PKW-Stellplätze zur Verfügung, die optional für monatlich 70,00 EUR zzgl. MwSt. pro Stellplatz hinzugemietet werden können.
Die Immobilie ist ab sofort verfügbar. Besichtigungen sind jederzeit nach vorheriger Vereinbarung möglich – wir freuen uns auf Ihre Kontaktaufnahme!
Lage
Die Immobilie befindet sich in Dresden im Stadtteil Äußere Neustad, direkt an einer frequentierten Ein- und Ausfallstraße.
Die Äußere Neustadt gehört zu den historischen Dresdner Vorstädten. Das Viertel gilt heute als Szeneviertel Dresdens.
Fußläufig gelegen befinden sich Haltepunkte des ÖPNV, Einkaufsmöglichkeiten des täglichen Bedarfs, Ärzte und verschiedenste Gastronomie.
Durch den Stadtteil verlaufen zwei der Dresdner Verkehrsachsen. Im Süden wird der Stadtteil von Antonstraße und Bautzner Straße, die als Bundesstraße 6 begrenzt. Auf der Königsbrücker Straße im Westen des Stadtteils verläuft die Bundesstraße 97. Der Albertplatz als deren Kreuzungspunkt befindet sich direkt südlich der Stadtteilgrenze in der Inneren Neustadt. Die wichtigsten dieser Straßen sind die Alaun- und die Louisenstraße, auf denen sich die meisten gastronomischen Einrichtungen und Läden befinden.
Auf den beiden Verkehrsachsen verlaufen die Dresdner Straßenbahnlinien 3, 6, 7, 8 und 11 zum Neustädter Straßenbahnknoten am Albertplatz. Die Linie 13 der Dresdner Verkehrsbetriebe umgeht diesen und verläuft zwischen Bischofsplatz und der Hoyerswerdaer Straße mitten durch das Szeneviertel.
Die Äußere Neustadt gehört zu den historischen Dresdner Vorstädten. Das Viertel gilt heute als Szeneviertel Dresdens.
Fußläufig gelegen befinden sich Haltepunkte des ÖPNV, Einkaufsmöglichkeiten des täglichen Bedarfs, Ärzte und verschiedenste Gastronomie.
Durch den Stadtteil verlaufen zwei der Dresdner Verkehrsachsen. Im Süden wird der Stadtteil von Antonstraße und Bautzner Straße, die als Bundesstraße 6 begrenzt. Auf der Königsbrücker Straße im Westen des Stadtteils verläuft die Bundesstraße 97. Der Albertplatz als deren Kreuzungspunkt befindet sich direkt südlich der Stadtteilgrenze in der Inneren Neustadt. Die wichtigsten dieser Straßen sind die Alaun- und die Louisenstraße, auf denen sich die meisten gastronomischen Einrichtungen und Läden befinden.
Auf den beiden Verkehrsachsen verlaufen die Dresdner Straßenbahnlinien 3, 6, 7, 8 und 11 zum Neustädter Straßenbahnknoten am Albertplatz. Die Linie 13 der Dresdner Verkehrsbetriebe umgeht diesen und verläuft zwischen Bischofsplatz und der Hoyerswerdaer Straße mitten durch das Szeneviertel.
Ausstattungsbeschreibung
* auf 3 Ebenen
* Schulungsraum im 1.OG
* Teeküche im 1.OG
* Lager- und Büronutzung
* zwei Eingänge
* PWK Stellplätze vorhanden
* ab sofort verfügbar
* Druckluftleitung vorhanden
* Aufzug vorhanden
* ebenerdige Anlieferung
* Starkstromanschlüsse vorhanden
* Lackierkabine im 1.OG
* Schulungsraum im 1.OG
* Teeküche im 1.OG
* Lager- und Büronutzung
* zwei Eingänge
* PWK Stellplätze vorhanden
* ab sofort verfügbar
* Druckluftleitung vorhanden
* Aufzug vorhanden
* ebenerdige Anlieferung
* Starkstromanschlüsse vorhanden
* Lackierkabine im 1.OG
Sonstiges
Haftungsausschluss: Trotz sorgfältiger Bearbeitung von Daten, Bildern und Informationen übernehmen wir keine Haftung für die Richtigkeit der Angaben, ebenso wenig für die Lieferfähigkeit des Angebotes bei Vermietung bzw. Verkauf. Bitte beachten Sie hierzu unsere allgemeinen Geschäftsbedingungen die Sie unter www.der-immo-tip.de einsehen können.
Kontakt

Objekt anfragen
while(allpics.length > 0){
allpics.pop();
}
var objnummer ="24248_03";var pic0 = new Image();pic0.src = 'uploads/pics/immo/1/2ab416e2-659f-4d7f-a940-e88453f3fe4b.jpg';
allpics.push('uploads/pics/immo/1/2ab416e2-659f-4d7f-a940-e88453f3fe4b.jpg');
var pic1 = new Image();pic1.src = 'uploads/pics/immo/1/_494749.jpg';
allpics.push('uploads/pics/immo/1/_494749.jpg');
var pic2 = new Image();pic2.src = 'uploads/pics/immo/1/_494743.jpg';
allpics.push('uploads/pics/immo/1/_494743.jpg');
var pic3 = new Image();pic3.src = 'uploads/pics/immo/1/_494745.jpg';
allpics.push('uploads/pics/immo/1/_494745.jpg');
var pic4 = new Image();pic4.src = 'uploads/pics/immo/1/_494747.jpg';
allpics.push('uploads/pics/immo/1/_494747.jpg');
var pic5 = new Image();pic5.src = 'uploads/pics/immo/1/_494751.jpg';
allpics.push('uploads/pics/immo/1/_494751.jpg');
var pic6 = new Image();pic6.src = 'uploads/pics/immo/1/_494753.jpg';
allpics.push('uploads/pics/immo/1/_494753.jpg');
var pic7 = new Image();pic7.src = 'uploads/pics/immo/1/_494755.jpg';
allpics.push('uploads/pics/immo/1/_494755.jpg');
var pic8 = new Image();pic8.src = 'uploads/pics/immo/1/_494757.jpg';
allpics.push('uploads/pics/immo/1/_494757.jpg');
var pic9 = new Image();pic9.src = 'uploads/pics/immo/1/_494759.jpg';
allpics.push('uploads/pics/immo/1/_494759.jpg');
var pic10 = new Image();pic10.src = 'uploads/pics/immo/1/_494761.jpg';
allpics.push('uploads/pics/immo/1/_494761.jpg');
var pic11 = new Image();pic11.src = 'uploads/pics/immo/1/_494763.jpg';
allpics.push('uploads/pics/immo/1/_494763.jpg');
var pic12 = new Image();pic12.src = 'uploads/pics/immo/1/_494765.jpg';
allpics.push('uploads/pics/immo/1/_494765.jpg');
var pic13 = new Image();pic13.src = 'uploads/pics/immo/1/_494767.jpg';
allpics.push('uploads/pics/immo/1/_494767.jpg');
var pic14 = new Image();pic14.src = 'uploads/pics/immo/1/_494769.jpg';
allpics.push('uploads/pics/immo/1/_494769.jpg');
var pic15 = new Image();pic15.src = 'uploads/pics/immo/1/_494771.jpg';
allpics.push('uploads/pics/immo/1/_494771.jpg');
var pic16 = new Image();pic16.src = 'uploads/pics/immo/1/_494773.jpg';
allpics.push('uploads/pics/immo/1/_494773.jpg');
var pic17 = new Image();pic17.src = 'uploads/pics/immo/1/_494777.jpg';
allpics.push('uploads/pics/immo/1/_494777.jpg');
var pic18 = new Image();pic18.src = 'uploads/pics/immo/1/_494779.jpg';
allpics.push('uploads/pics/immo/1/_494779.jpg');
var pic19 = new Image();pic19.src = 'uploads/pics/immo/1/_494781.jpg';
allpics.push('uploads/pics/immo/1/_494781.jpg');
var pic20 = new Image();pic20.src = 'uploads/pics/immo/1/_494783.jpg';
allpics.push('uploads/pics/immo/1/_494783.jpg');
var pic21 = new Image();pic21.src = 'uploads/pics/immo/1/_494785.jpg';
allpics.push('uploads/pics/immo/1/_494785.jpg');
var pic22 = new Image();pic22.src = 'uploads/pics/immo/1/_494787.jpg';
allpics.push('uploads/pics/immo/1/_494787.jpg');
var pic23 = new Image();pic23.src = 'uploads/pics/immo/1/_494789.jpg';
allpics.push('uploads/pics/immo/1/_494789.jpg');
var pic24 = new Image();pic24.src = 'uploads/pics/immo/1/_494791.jpg';
allpics.push('uploads/pics/immo/1/_494791.jpg');
var pic25 = new Image();pic25.src = 'uploads/pics/immo/1/_494793.jpg';
allpics.push('uploads/pics/immo/1/_494793.jpg');
var pic26 = new Image();pic26.src = 'uploads/pics/immo/1/_494795.jpg';
allpics.push('uploads/pics/immo/1/_494795.jpg');
var pic27 = new Image();pic27.src = 'uploads/pics/immo/1/_494797.jpg';
allpics.push('uploads/pics/immo/1/_494797.jpg');
Weitere Objekte zu Ihrer Suche
Zwei Sanierungsobjekte in ruhiger Lage von Dresden zum Kauf | Denkmalgeschützter Bauernhof + ehem. Gasthof
Lager- und Produktionsflächen direkt an der S177 und S81 - unweit der Halbleiterindustrie - zum Kauf!
Helle 2-Zimmer-Wohnung in Kleinschachwitz | Eigennutzung oder Kapitalanlage | Balkon & TG-Stellplatz
Helle 2-Zimmer-Wohnung in Kleinschachwitz | Eigennutzung oder Kapitalanlage | Balkon & TG-Stellplatz
Zur Vermietung oder Selbstnutzung - Immobilienpaket nahe Dresden | 14 Gewerbeeinheiten & 21 TG Stellplätze in Coswig zum Kauf
Zur Vermietung oder Selbstnutzung - Immobilienpaket nahe Dresden | 14 Gewerbeeinheiten & 21 TG Stellplätze in Coswig zum Kauf
Lager- und Produktionsflächen direkt an der S177 und S81 - unweit der Halbleiterindustrie - zum Kauf!
Kontakt
Telefonkontakt
| Immobilienmakler | |
| Dresden: | 0351 433 130 |
| Leipzig: | 0341 600 539 90 |
| Chemnitz: | 0371 238 710 600 |
| Hausverwaltung | |
| Dresden: | 0351 213 914 60 |
| Mietersprechzeiten | |
| Montag: | 09:00 - 12:00 Uhr 13:00 - 17:00 Uhr |
| Mittwoch: | 09:00 - 12:00 Uhr |
| Donnerstag: | 09:00 - 12:00 Uhr 13:00 - 15:30 Uhr |












































































































































































































































































































































































































































































































































































































































































































