Bauträgerfrei! ca. 1.654 m² großes Grundstück vor den Toren Dresdens!
Eckdaten
| Objekt-ID: | 59450_01 |
| Lage: | 01454 Großerkmannsdorf |
| Immobilienart: | Wohnen |
| Grundstücksfläche: | ca. 1.654 m² |
| Kaufpreis: | 443.512,00 € |
Beschreibung
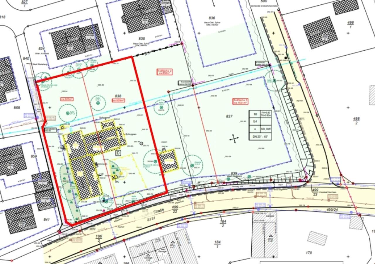
Zum Verkauf steht ein ca. 1.654m² großes Baugrundstück in attraktiver Lage zwischen Dresden und Radeberg in Großerkmannsdorf, welches verschiedene Nutzungsmöglichkeiten bietet. So ist u.a. die Errichtung eines Einfamilienhauses/ Reihenhaus/ Doppelhaus/ Mehrfamilienhauses möglich.
Es ist auch eine Teilung des Gesamtgrundstücks in 2 Teilflächen mit ca. 827 m² möglich.
Gern stimmen wir einen Vorort-Termin ab oder stellen Ihnen weiterführende Unterlagen zur Verfügung.
Es ist auch eine Teilung des Gesamtgrundstücks in 2 Teilflächen mit ca. 827 m² möglich.
Gern stimmen wir einen Vorort-Termin ab oder stellen Ihnen weiterführende Unterlagen zur Verfügung.
Lage
Das Grundstück befindet sich in Großerkmannsdorf, nordöstlich der Landeshauptstadt Dresden, innerhalb einer vorrangig von Einfamilienhäusern bebauten Umgebung.
Großerkmannsdorf ist ein Ortsteil der Großen Kreisstadt Radeberg in Sachsen. Zu Großerkmannsdorf gehören die Ortslagen Kleinerkmannsdorf, Siedlung Rossendorf und die Bergsiedlung am nordöstlichen Rand Ullersdorfs. Der Ortsteil Großerkmannsdorf befindet sich im Süden der Stadt Radeberg. Nordwestlich von Großerkmannsdorf erstreckt sich der Staatsforst Dresdner Heide, südwestlich Ullersdorf sowie im Süden die Siedlung Rossendorf und südöstlich der Karswald. Weiter südlich liegt das Schönfelder Hochland. Durch den Ort fließt der Goldbach, der nach Durchquerung der Radeberger Südvorstadt linksseitig in die Große Röder mündet.
Die Entfernung zum bekannten Ullersdorfer Platz in Dresden-Bühlau mit Anschluss ans Dresdener Bus- und Straßenbahnnetz beträgt ca. 6 km. Der Regionalbus 521 hält in unmittelbarer Nähe und bietet eine bequeme Verkehrsverbindung. Die Entfernung zum Golfplatz Ullersdorf beträgt ca. 3 km.
Die Bundesstraße 6 verläuft am südlichen Rand des Gemeindegebietes. Durch Großerkmannsdorf verläuft die Staatsstraße 181 von Radeberg nach Dresden. Die Staatsstraße 177 führt als Ortsumgehung Großerkmannsdorf/Radeberg am Ort vorbei. Großerkmannsdorf ist durch die Buslinien 309 und 307 des Regionalverkehr Dresden mit Dresden und Radeberg sowie weiteren umliegenden Gemeinden verbunden.
Entfernungen:
Bushaltestelle ca. 100 m
Ärztliche Versorgung - ca. 200 m
Kindergarten/KiTa ca. 250 m
Grundschule - ca. 800 m
Supermarkt - ca. 1,5 km
Bahnhof ca. 3 km
Autobahn ca. 13 km
Großerkmannsdorf ist ein Ortsteil der Großen Kreisstadt Radeberg in Sachsen. Zu Großerkmannsdorf gehören die Ortslagen Kleinerkmannsdorf, Siedlung Rossendorf und die Bergsiedlung am nordöstlichen Rand Ullersdorfs. Der Ortsteil Großerkmannsdorf befindet sich im Süden der Stadt Radeberg. Nordwestlich von Großerkmannsdorf erstreckt sich der Staatsforst Dresdner Heide, südwestlich Ullersdorf sowie im Süden die Siedlung Rossendorf und südöstlich der Karswald. Weiter südlich liegt das Schönfelder Hochland. Durch den Ort fließt der Goldbach, der nach Durchquerung der Radeberger Südvorstadt linksseitig in die Große Röder mündet.
Die Entfernung zum bekannten Ullersdorfer Platz in Dresden-Bühlau mit Anschluss ans Dresdener Bus- und Straßenbahnnetz beträgt ca. 6 km. Der Regionalbus 521 hält in unmittelbarer Nähe und bietet eine bequeme Verkehrsverbindung. Die Entfernung zum Golfplatz Ullersdorf beträgt ca. 3 km.
Die Bundesstraße 6 verläuft am südlichen Rand des Gemeindegebietes. Durch Großerkmannsdorf verläuft die Staatsstraße 181 von Radeberg nach Dresden. Die Staatsstraße 177 führt als Ortsumgehung Großerkmannsdorf/Radeberg am Ort vorbei. Großerkmannsdorf ist durch die Buslinien 309 und 307 des Regionalverkehr Dresden mit Dresden und Radeberg sowie weiteren umliegenden Gemeinden verbunden.
Entfernungen:
Bushaltestelle ca. 100 m
Ärztliche Versorgung - ca. 200 m
Kindergarten/KiTa ca. 250 m
Grundschule - ca. 800 m
Supermarkt - ca. 1,5 km
Bahnhof ca. 3 km
Autobahn ca. 13 km
Sonstiges
Haftungsausschluss: Trotz sorgfältiger Bearbeitung von Daten, Bildern und Informationen übernehmen wir keine Haftung für die Richtigkeit der Angaben, ebenso wenig für die Lieferfähigkeit des Angebotes bei Vermietung bzw. Verkauf. Bitte beachten Sie hierzu unsere allgemeinen Geschäftsbedingungen die Sie unter www.der-immo-tip.de einsehen können.
Kontakt

Objekt anfragen
while(allpics.length > 0){
allpics.pop();
}
var objnummer ="59450_01";var pic0 = new Image();pic0.src = 'uploads/pics/immo/1/_processed_/1/3/csm__469841_be11acfee7.jpg';
allpics.push('uploads/pics/immo/1/_processed_/1/3/csm__469841_be11acfee7.jpg');
var pic1 = new Image();pic1.src = 'uploads/pics/immo/1/_processed_/a/d/csm__469843_63e6107b64.jpg';
allpics.push('uploads/pics/immo/1/_processed_/a/d/csm__469843_63e6107b64.jpg');
var pic2 = new Image();pic2.src = 'uploads/pics/immo/1/_processed_/4/e/csm__469845_51d4f1521b.jpg';
allpics.push('uploads/pics/immo/1/_processed_/4/e/csm__469845_51d4f1521b.jpg');
var pic3 = new Image();pic3.src = 'uploads/pics/immo/1/_processed_/2/a/csm__469847_a6ff375330.jpg';
allpics.push('uploads/pics/immo/1/_processed_/2/a/csm__469847_a6ff375330.jpg');
var pic4 = new Image();pic4.src = 'uploads/pics/immo/1/_processed_/c/d/csm__469849_a57a9b54a0.jpg';
allpics.push('uploads/pics/immo/1/_processed_/c/d/csm__469849_a57a9b54a0.jpg');
var pic5 = new Image();pic5.src = 'uploads/pics/immo/1/_processed_/b/c/csm__469851_1a032ecf9b.jpg';
allpics.push('uploads/pics/immo/1/_processed_/b/c/csm__469851_1a032ecf9b.jpg');
Weitere Objekte zu Ihrer Suche
Erbbaurecht | 7.440 m² Lager-& Produktionsfläche mit Gleisanbindung und im Hafen in Dresden Friedrichstadt
Lager- und Produktionsflächen direkt an der S177 und S81 - unweit der Halbleiterindustrie - zum Kauf!
Kontakt
Telefonkontakt
| Immobilienmakler | |
| Dresden: | 0351 433 130 |
| Leipzig: | 0341 600 539 90 |
| Chemnitz: | 0371 238 710 600 |
| Hausverwaltung | |
| Dresden: | 0351 213 914 60 |
| Mietersprechzeiten | |
| Montag: | 09:00 - 12:00 Uhr 13:00 - 17:00 Uhr |
| Mittwoch: | 09:00 - 12:00 Uhr |
| Donnerstag: | 09:00 - 12:00 Uhr 13:00 - 15:30 Uhr |























































































































































































































































































































































































































































































































































































































































