Autohaus mit Werkstatt nahe der A4 in Frankenberg - jetzt kaufen!
Eckdaten
| Objekt-ID: | 66436_02 |
| Lage: | 09669 Frankenberg |
| Immobilienart: | Halle |
| Grundstücksfläche: | ca. 3.224 m² |
| Wohnfläche: | ca. 90 m² |
| Lagerfläche: | ca. 1.115 m² |
| Bürofläche: | ca. 218 m² |
| Gesamtfläche: | ca. 1.323 m² |
| Bezugstermin: | in Abstimmung |
Beschreibung
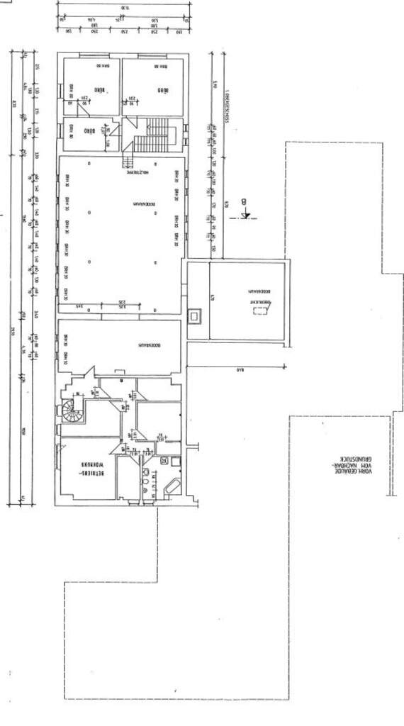
Zum Verkauf steht eine gepflegte und vielseitig nutzbare Gewerbeimmobilie mit einer Gesamtfläche von ca. 1.323 m², gelegen auf einem ca. 3.224 m² großen Grundstück (bestehend aus zwei Flurstücken). Die Immobilie wurde zuletzt als Autohaus mit Werkstattbetrieb genutzt.
Die Aufteilung der Flächen ist wie folgt:
- Erdgeschoss -
* ca. 575 m² Lagerfläche
* ca. 200 m² Werkstatt
* ca. 80 m² Büro
* ca. 75 m² Büro im Nebengebäude
- 1. Obergeschoss -
* ca. 240 m² Lager
* ca. 63 m² Büro
* ca. 90 m² Wohnung
Auf dem Grundstück befindet sich zusätzlich ein Waschplatz (ca. 100 m²), eine ca. 1.600 m² Freifläche sowie ein ca. 15 m tiefer Brunnen.
Der Energieausweis befindet sich in Erstellung und wird nachgereicht.
Bei Interesse stimmen wir gern einen Besichtigungstermin ab bzw. stellen Ihnen weiterführende Unterlagen zur Verfügung.
Die Aufteilung der Flächen ist wie folgt:
- Erdgeschoss -
* ca. 575 m² Lagerfläche
* ca. 200 m² Werkstatt
* ca. 80 m² Büro
* ca. 75 m² Büro im Nebengebäude
- 1. Obergeschoss -
* ca. 240 m² Lager
* ca. 63 m² Büro
* ca. 90 m² Wohnung
Auf dem Grundstück befindet sich zusätzlich ein Waschplatz (ca. 100 m²), eine ca. 1.600 m² Freifläche sowie ein ca. 15 m tiefer Brunnen.
Der Energieausweis befindet sich in Erstellung und wird nachgereicht.
Bei Interesse stimmen wir gern einen Besichtigungstermin ab bzw. stellen Ihnen weiterführende Unterlagen zur Verfügung.
Lage
Die Immobilie befindet sich in Frankenberg in Sachsen, nahe der B169 und ca. 5 Autominuten von der Anschlusstelle A4 entfernt.
Frankenberg/Sa. ist eine Kleinstadt im Landkreis Mittelsachsen an der Zschopau in der Nähe der sächsischen Industriestadt Chemnitz. Der Ort befindet sich inmitten des Sachsendreieckes Chemnitz ( ca. 10 km) – Dresden ( ca. 55 km) – Leipzig ( ca. 80 km) und ist mit einer eigenen Anschlussstelle an die Bundesautobahn 4 angebunden. Durch den Ort verlaufen die Bundesstraßen 169 und 180.
Die nächsten größeren Flughäfen sind in ca. 60 km Entfernung Dresden und ca. 90 km Leipzig/Halle.
Frankenberg/Sa. ist eine Kleinstadt im Landkreis Mittelsachsen an der Zschopau in der Nähe der sächsischen Industriestadt Chemnitz. Der Ort befindet sich inmitten des Sachsendreieckes Chemnitz ( ca. 10 km) – Dresden ( ca. 55 km) – Leipzig ( ca. 80 km) und ist mit einer eigenen Anschlussstelle an die Bundesautobahn 4 angebunden. Durch den Ort verlaufen die Bundesstraßen 169 und 180.
Die nächsten größeren Flughäfen sind in ca. 60 km Entfernung Dresden und ca. 90 km Leipzig/Halle.
Ausstattungsbeschreibung
* 5 Sektionaltore
* Büro mit Klimaanlage
* Brunnen mit ca. 15 m Tiefe (Wasser kann genutzt werden)
* befestigte Freifläche
* Wohnung mit großer Dachterrasse
* zwei Zufahrten
* mit Garagen
* Büro mit Klimaanlage
* Brunnen mit ca. 15 m Tiefe (Wasser kann genutzt werden)
* befestigte Freifläche
* Wohnung mit großer Dachterrasse
* zwei Zufahrten
* mit Garagen
Sonstiges
Hinweis: Fehlende Angaben zum Energieausweis gemäß Energiesparverordnung 2014 ( EnEV ) begründen sich durch Nichtangabepflicht bei Denkmalschutzobjekten, Grundstücken, nichtbeheizbaren Immobilien oder wurden bisher trotz Aufforderung gegenüber dem Auftraggeber nicht zur Verfügung gestellt.
Haftungsausschluss: Trotz sorgfältiger Bearbeitung von Daten, Bildern und Informationen übernehmen wir keine Haftung für die Richtigkeit der Angaben, ebenso wenig für die Lieferfähigkeit des Angebotes bei Vermietung bzw. Verkauf. Bitte beachten Sie hierzu unsere allgemeinen Geschäftsbedingungen die Sie unter www.der-immo-tip.de einsehen können.
Haftungsausschluss: Trotz sorgfältiger Bearbeitung von Daten, Bildern und Informationen übernehmen wir keine Haftung für die Richtigkeit der Angaben, ebenso wenig für die Lieferfähigkeit des Angebotes bei Vermietung bzw. Verkauf. Bitte beachten Sie hierzu unsere allgemeinen Geschäftsbedingungen die Sie unter www.der-immo-tip.de einsehen können.
Kontakt

Objekt anfragen
while(allpics.length > 0){
allpics.pop();
}
var objnummer ="66436_02";var pic0 = new Image();pic0.src = 'uploads/pics/immo/1/_processed_/f/9/csm__474849_2c4d8e6c87.jpg';
allpics.push('uploads/pics/immo/1/_processed_/f/9/csm__474849_2c4d8e6c87.jpg');
var pic1 = new Image();pic1.src = 'uploads/pics/immo/1/_processed_/5/b/csm__474851_ee76f9f946.jpg';
allpics.push('uploads/pics/immo/1/_processed_/5/b/csm__474851_ee76f9f946.jpg');
var pic2 = new Image();pic2.src = 'uploads/pics/immo/1/_processed_/7/a/csm__474853_5ffdb66b62.jpg';
allpics.push('uploads/pics/immo/1/_processed_/7/a/csm__474853_5ffdb66b62.jpg');
var pic3 = new Image();pic3.src = 'uploads/pics/immo/1/_processed_/b/e/csm__474855_e19f32c7be.jpg';
allpics.push('uploads/pics/immo/1/_processed_/b/e/csm__474855_e19f32c7be.jpg');
var pic4 = new Image();pic4.src = 'uploads/pics/immo/1/_processed_/5/c/csm__474857_9a0c7d620d.jpg';
allpics.push('uploads/pics/immo/1/_processed_/5/c/csm__474857_9a0c7d620d.jpg');
var pic5 = new Image();pic5.src = 'uploads/pics/immo/1/_processed_/4/c/csm__474859_1a4491e13d.jpg';
allpics.push('uploads/pics/immo/1/_processed_/4/c/csm__474859_1a4491e13d.jpg');
var pic6 = new Image();pic6.src = 'uploads/pics/immo/1/_processed_/6/6/csm__474861_a0c309b29b.jpg';
allpics.push('uploads/pics/immo/1/_processed_/6/6/csm__474861_a0c309b29b.jpg');
var pic7 = new Image();pic7.src = 'uploads/pics/immo/1/_processed_/4/7/csm__474863_ef231aa2a8.jpg';
allpics.push('uploads/pics/immo/1/_processed_/4/7/csm__474863_ef231aa2a8.jpg');
var pic8 = new Image();pic8.src = 'uploads/pics/immo/1/_processed_/7/e/csm__474865_bb49b57049.jpg';
allpics.push('uploads/pics/immo/1/_processed_/7/e/csm__474865_bb49b57049.jpg');
var pic9 = new Image();pic9.src = 'uploads/pics/immo/1/_processed_/8/1/csm__474867_25845625e8.jpg';
allpics.push('uploads/pics/immo/1/_processed_/8/1/csm__474867_25845625e8.jpg');
var pic10 = new Image();pic10.src = 'uploads/pics/immo/1/_processed_/9/f/csm__474869_1657b25dbe.jpg';
allpics.push('uploads/pics/immo/1/_processed_/9/f/csm__474869_1657b25dbe.jpg');
var pic11 = new Image();pic11.src = 'uploads/pics/immo/1/_processed_/6/1/csm__474871_4465d76a3c.jpg';
allpics.push('uploads/pics/immo/1/_processed_/6/1/csm__474871_4465d76a3c.jpg');
var pic12 = new Image();pic12.src = 'uploads/pics/immo/1/_processed_/4/d/csm__474873_a8c2763c17.jpg';
allpics.push('uploads/pics/immo/1/_processed_/4/d/csm__474873_a8c2763c17.jpg');
var pic13 = new Image();pic13.src = 'uploads/pics/immo/1/_processed_/8/1/csm__474875_c3955be326.jpg';
allpics.push('uploads/pics/immo/1/_processed_/8/1/csm__474875_c3955be326.jpg');
var pic14 = new Image();pic14.src = 'uploads/pics/immo/1/_processed_/a/5/csm__474877_2c3424ea7c.jpg';
allpics.push('uploads/pics/immo/1/_processed_/a/5/csm__474877_2c3424ea7c.jpg');
var pic15 = new Image();pic15.src = 'uploads/pics/immo/1/_processed_/f/e/csm__474879_1ea87bd58a.jpg';
allpics.push('uploads/pics/immo/1/_processed_/f/e/csm__474879_1ea87bd58a.jpg');
var pic16 = new Image();pic16.src = 'uploads/pics/immo/1/_processed_/c/b/csm__474881_37792e7bd5.jpg';
allpics.push('uploads/pics/immo/1/_processed_/c/b/csm__474881_37792e7bd5.jpg');
var pic17 = new Image();pic17.src = 'uploads/pics/immo/1/_processed_/c/9/csm__474883_3d660ba25d.jpg';
allpics.push('uploads/pics/immo/1/_processed_/c/9/csm__474883_3d660ba25d.jpg');
var pic18 = new Image();pic18.src = 'uploads/pics/immo/1/_processed_/5/4/csm__474885_0992779a86.jpg';
allpics.push('uploads/pics/immo/1/_processed_/5/4/csm__474885_0992779a86.jpg');
var pic19 = new Image();pic19.src = 'uploads/pics/immo/1/_processed_/d/8/csm__474887_56d3312d25.jpg';
allpics.push('uploads/pics/immo/1/_processed_/d/8/csm__474887_56d3312d25.jpg');
var pic20 = new Image();pic20.src = 'uploads/pics/immo/1/_processed_/1/4/csm_78d3ea0d-6f1e-40ab-8869-838e43620544_b0adc37c73.jpg';
allpics.push('uploads/pics/immo/1/_processed_/1/4/csm_78d3ea0d-6f1e-40ab-8869-838e43620544_b0adc37c73.jpg');
var pic21 = new Image();pic21.src = 'uploads/pics/immo/1/_processed_/0/a/csm_4c79c0b4-15c4-472e-97e8-1f99b53109a8_ed416e9a6a.jpg';
allpics.push('uploads/pics/immo/1/_processed_/0/a/csm_4c79c0b4-15c4-472e-97e8-1f99b53109a8_ed416e9a6a.jpg');
var pic22 = new Image();pic22.src = 'uploads/pics/immo/1/_processed_/7/8/csm_a484c0cf-1c62-480d-a4dd-ee67dd25f3cf_14f0c53ee8.jpg';
allpics.push('uploads/pics/immo/1/_processed_/7/8/csm_a484c0cf-1c62-480d-a4dd-ee67dd25f3cf_14f0c53ee8.jpg');
Weitere Objekte zu Ihrer Suche
Kontakt
Telefonkontakt
| Immobilienmakler | |
| Dresden: | 0351 433 130 |
| Leipzig: | 0341 600 539 90 |
| Chemnitz: | 0371 238 710 600 |
| Hausverwaltung | |
| Dresden: | 0351 213 914 60 |
| Mietersprechzeiten | |
| Montag: | 09:00 - 12:00 Uhr 13:00 - 17:00 Uhr |
| Mittwoch: | 09:00 - 12:00 Uhr |
| Donnerstag: | 09:00 - 12:00 Uhr 13:00 - 15:30 Uhr |














































































































































