Attraktives Mehrfamilienhaus mit 7 Wohneinheiten in Rossau – solide Kapitalanlage
Eckdaten
| Objekt-ID: | 66941 |
| Lage: | 09661 Rossau |
| Immobilienart: | Mehrfamilienhaus |
| Grundstücksfläche: | ca. 800 m² |
| Wohnfläche: | ca. 569 m² |
| Gesamtfläche: | ca. 569 m² |
| Baujahr: | 2018 |
| Kaufpreis: | 560.000,00 € |
| Kaufpreis/m²: | 984,18 € |
Beschreibung
Zum Verkauf steht ein gepflegtes Mehrfamilienhaus mit sieben Wohneinheiten und einer Gesamtmietfläche von etwa 571 m². Das Gebäude wurde Mitte der 1990er Jahre im Rohbau errichtet, die Umnutzung vom ehemaligen Bürohaus zum Wohnhaus erfolgte 2018. Damit präsentiert sich die Immobilie in einem modernisierten Zustand mit solider Bausubstanz.
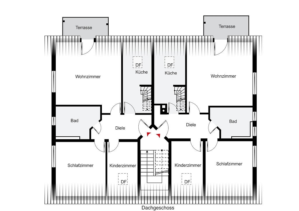
Die Wohnungen verfügen über Wohnflächen zwischen etwa 71 m² und 88 m². Sechs der sieben Wohnungen besitzen einen eigenen Balkon, alle Einheiten sind mit einem Stellplatz ausgestattet.
Aktuell sind sämtliche sieben Wohneinheiten vermietet, was eine stabile Mieteinnahme und damit eine verlässliche Kapitalanlage gewährleistet.
Das Objekt steht auf einem rund 800 m² großen Grundstück und bietet Mietern wie Eigentümern ein gepflegtes, ruhiges Wohnumfeld mit hohem Alltagskomfort.
Attraktives Mehrfamilienhaus mit 7 Wohneinheiten in Rossau – solide Kapitalanlage
Die Wohnungen verfügen über Wohnflächen zwischen etwa 71 m² und 88 m². Sechs der sieben Wohnungen besitzen einen eigenen Balkon, alle Einheiten sind mit einem Stellplatz ausgestattet.
Aktuell sind sämtliche sieben Wohneinheiten vermietet, was eine stabile Mieteinnahme und damit eine verlässliche Kapitalanlage gewährleistet.
Das Objekt steht auf einem rund 800 m² großen Grundstück und bietet Mietern wie Eigentümern ein gepflegtes, ruhiges Wohnumfeld mit hohem Alltagskomfort.
Attraktives Mehrfamilienhaus mit 7 Wohneinheiten in Rossau – solide Kapitalanlage
Lage
Das Mehrfamilienhaus befindet sich in Rossau, einer ruhig gelegenen Gemeinde im Landkreis Mittelsachsen. Der Standort überzeugt durch seine grüne Umgebung, die stabile Bevölkerungsstruktur und die Nähe zu wichtigen Städten. Über die A4 erreicht man Chemnitz in rund 20 Minuten und Dresden in weniger als einer Stunde.
Im nahegelegenen Frankenberg und Mittweida gibt es vielfältige Einkaufsmöglichkeiten, Schulen, Kindergärten, Ärzte und Freizeitangebote. Diese gute Infrastruktur macht Rossau besonders attraktiv für Familien und Berufspendler.
Die Kombination aus ländlicher Ruhe, guter Verkehrsanbindung und solider Mietnachfrage sorgt für nachhaltige Vermietungssicherheit – ein verlässliches Investment in einer wirtschaftlich stabilen Region.
Im nahegelegenen Frankenberg und Mittweida gibt es vielfältige Einkaufsmöglichkeiten, Schulen, Kindergärten, Ärzte und Freizeitangebote. Diese gute Infrastruktur macht Rossau besonders attraktiv für Familien und Berufspendler.
Die Kombination aus ländlicher Ruhe, guter Verkehrsanbindung und solider Mietnachfrage sorgt für nachhaltige Vermietungssicherheit – ein verlässliches Investment in einer wirtschaftlich stabilen Region.
Ausstattungsbeschreibung
* hochwertiges Laminat verlegt
* moderne, anthrazitfarbene Fliesen
* Balkonanlage für 6 Wohnungen
* moderne, anthrazitfarbene Fliesen
* Balkonanlage für 6 Wohnungen
Sonstiges
Haftungsausschluss: Trotz sorgfältiger Bearbeitung von Daten, Bildern und Informationen übernehmen wir keine Haftung für die Richtigkeit der Angaben, ebenso wenig für die Lieferfähigkeit des Angebotes bei Vermietung bzw. Verkauf. Bitte beachten Sie hierzu unsere allgemeinen Geschäftsbedingungen die Sie unter www.der-immo-tip.de einsehen können.
Energieeffizienz
| Energieausweistyp: | Bedarfsausweis |
| Denkmalschutz: | Nein |
Kontakt

Objekt anfragen
while(allpics.length > 0){
allpics.pop();
}
var objnummer ="66941";var pic0 = new Image();pic0.src = 'typo3temp/_processed_/3/f/csm_dummy_13f8b15a7b.jpg';
allpics.push('typo3temp/_processed_/3/f/csm_dummy_13f8b15a7b.jpg');
Weitere Objekte zu Ihrer Suche
Kontakt
Telefonkontakt
| Immobilienmakler | |
| Dresden: | 0351 433 130 |
| Leipzig: | 0341 600 539 90 |
| Chemnitz: | 0371 238 710 600 |
| Hausverwaltung | |
| Dresden: | 0351 213 914 60 |
| Mietersprechzeiten | |
| Montag: | 09:00 - 12:00 Uhr 13:00 - 17:00 Uhr |
| Mittwoch: | 09:00 - 12:00 Uhr |
| Donnerstag: | 09:00 - 12:00 Uhr 13:00 - 15:30 Uhr |
























































































































