707 m² vielseitige Gewerbefläche (O) für Werkstatt/ Büro/ Lager in Ohorn zur Miete
Eckdaten
| Objekt-ID: | 62530_09 |
| Lage: | 01896 Ohorn |
| Immobilienart: | Produktion |
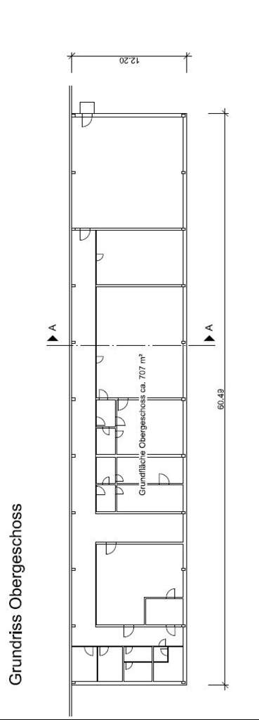
| Lagerfläche: | ca. 707 m² |
| Gesamtfläche: | ca. 707 m² |
| Bezugstermin: | ab sofort |
| Nettokaltmiete/m²/Monat: | 4,00 € |
| Mieterprovision: | 2,38 Nettokaltmieten inkl. MwSt. |
Beschreibung
Zur Vermietung steht eine ca. 707 m² große Gewerbefläche, nutzbar für Lager, Werkstatt und Büro, die sich auf einem ca. 28.000 m² großes Gewerbegrundstück befinden. Das Areal besteht aus ca. 13.000 m² Lager- und Produktionsgebäude .
Die Mietfläche erstreckt sich über Erdgeschoss mit ca. 29 m² und dem Obergeschoss mit ca. 707 m².
Der Mietzins ist abhängig von dem Renovierungsbedarf und beträgt zwischen 4,00 und 8,50 €/m².
Neben der o.g. Gewerbefläche gibt es noch folgende vakante Mietflächen, die bei Interesse zusätzlich angemietet werden können:
Gebäude A - Verwaltungsgebäude - ca. 505 m²
Gebäude B - Lager/Werkstatt mit Büro - ca. 1.095 m²
Gebäide F - Halle für Produktion, Lager, Werkstatt - ca. 1.427 m² (mit Brückenkran)
Gebäude G - Halle für Produktion, Lager, Werkstatt - ca. 600 m²
Gebäude H - Halle für Produktion, Lager, Werkstatt - ca. 225 m²
Gebäude O - Werkstatt, Büro, Lager - ca. 1.414 m²
Gebäude S - Lagerhalle - ca. 310 m²
Es stehen Freiflächen mit bis zu ca. 20.000 m² auf dem Areal zur Anmietung zur Verfügung.
Bei Interesse erhalten Sie gern weiterführende Informationen bzw. stimmen wir einen gemeinsamen Besichtigungstermin ab.
Die Mietfläche erstreckt sich über Erdgeschoss mit ca. 29 m² und dem Obergeschoss mit ca. 707 m².
Der Mietzins ist abhängig von dem Renovierungsbedarf und beträgt zwischen 4,00 und 8,50 €/m².
Neben der o.g. Gewerbefläche gibt es noch folgende vakante Mietflächen, die bei Interesse zusätzlich angemietet werden können:
Gebäude A - Verwaltungsgebäude - ca. 505 m²
Gebäude B - Lager/Werkstatt mit Büro - ca. 1.095 m²
Gebäide F - Halle für Produktion, Lager, Werkstatt - ca. 1.427 m² (mit Brückenkran)
Gebäude G - Halle für Produktion, Lager, Werkstatt - ca. 600 m²
Gebäude H - Halle für Produktion, Lager, Werkstatt - ca. 225 m²
Gebäude O - Werkstatt, Büro, Lager - ca. 1.414 m²
Gebäude S - Lagerhalle - ca. 310 m²
Es stehen Freiflächen mit bis zu ca. 20.000 m² auf dem Areal zur Anmietung zur Verfügung.
Bei Interesse erhalten Sie gern weiterführende Informationen bzw. stimmen wir einen gemeinsamen Besichtigungstermin ab.
Lage
Der Hallenkomplex verfügt über ein TOP-Anbindung an die Autobahn A4! Über die S56 gelangt man in unter 1 Minuten auf die Ab- und Auffahrt Ohorn, welche sich lediglich ca. 500 m vom Gelände entfernt befindet.
Die wichtigsten Entfernungen im Überblick:
- Abfahrt Flughafen Dresden: ca. 16 Minuten | 25 Km
- Abfahrt Dresden-Hellerau: ca. 18 Minuten | 28 Km
- Abfahrt Dresden-Neustadt: ca. 19 Minuten | 31 Km
- Abfahrt Dresden-Altstadt: ca. 22 Minuten | 35 Km
- Dresden Zentrum: 32 Minuten | 35 Km
- Mit dem ÖPNV/S-Bahn/ Bus: ca. 1h 15 Min.
Ohorn liegt im Landkreis Bautzen im Bundesland Sachsen, im östlichen Teil Deutschlands. Die Gemeinde befindet sich etwa 30 Kilometer nordwestlich von Dresden, der Landeshauptstadt von Sachsen.
Die wichtigsten Entfernungen im Überblick:
- Abfahrt Flughafen Dresden: ca. 16 Minuten | 25 Km
- Abfahrt Dresden-Hellerau: ca. 18 Minuten | 28 Km
- Abfahrt Dresden-Neustadt: ca. 19 Minuten | 31 Km
- Abfahrt Dresden-Altstadt: ca. 22 Minuten | 35 Km
- Dresden Zentrum: 32 Minuten | 35 Km
- Mit dem ÖPNV/S-Bahn/ Bus: ca. 1h 15 Min.
Ohorn liegt im Landkreis Bautzen im Bundesland Sachsen, im östlichen Teil Deutschlands. Die Gemeinde befindet sich etwa 30 Kilometer nordwestlich von Dresden, der Landeshauptstadt von Sachsen.
Ausstattungsbeschreibung
* Elektrik, Heizung, Wasser, WC, Waschbecken, Dusche
Sonstiges
Hinweis: Fehlende Angaben zum Energieausweis gemäß Energiesparverordnung 2014 ( EnEV ) begründen sich durch Nichtangabepflicht bei Denkmalschutzobjekten, Grundstücken, nichtbeheizbaren Immobilien oder wurden bisher trotz Aufforderung gegenüber dem Auftraggeber nicht zur Verfügung gestellt.
Haftungsausschluss: Trotz sorgfältiger Bearbeitung von Daten, Bildern und Informationen übernehmen wir keine Haftung für die Richtigkeit der Angaben, ebenso wenig für die Lieferfähigkeit des Angebotes bei Vermietung bzw. Verkauf. Bitte beachten Sie hierzu unsere allgemeinen Geschäftsbedingungen die Sie unter www.der-immo-tip.de einsehen können.
Haftungsausschluss: Trotz sorgfältiger Bearbeitung von Daten, Bildern und Informationen übernehmen wir keine Haftung für die Richtigkeit der Angaben, ebenso wenig für die Lieferfähigkeit des Angebotes bei Vermietung bzw. Verkauf. Bitte beachten Sie hierzu unsere allgemeinen Geschäftsbedingungen die Sie unter www.der-immo-tip.de einsehen können.
Kontakt

Objekt anfragen
while(allpics.length > 0){
allpics.pop();
}
var objnummer ="62530_09";var pic0 = new Image();pic0.src = 'uploads/pics/immo/1/4084513a-ee0d-49ce-a0bd-0287833159f4.jpg';
allpics.push('uploads/pics/immo/1/4084513a-ee0d-49ce-a0bd-0287833159f4.jpg');
var pic1 = new Image();pic1.src = 'uploads/pics/immo/1/01afd874-ecd6-46b7-bba6-3f71e31c062a.jpg';
allpics.push('uploads/pics/immo/1/01afd874-ecd6-46b7-bba6-3f71e31c062a.jpg');
var pic2 = new Image();pic2.src = 'uploads/pics/immo/1/dfc8d39c-0f3d-4ae8-b256-28b9a05becba.jpg';
allpics.push('uploads/pics/immo/1/dfc8d39c-0f3d-4ae8-b256-28b9a05becba.jpg');
var pic3 = new Image();pic3.src = 'uploads/pics/immo/1/_processed_/1/0/csm__468771_207b9a8232.jpg';
allpics.push('uploads/pics/immo/1/_processed_/1/0/csm__468771_207b9a8232.jpg');
var pic4 = new Image();pic4.src = 'uploads/pics/immo/1/_processed_/3/3/csm__468773_0cc04d8a84.jpg';
allpics.push('uploads/pics/immo/1/_processed_/3/3/csm__468773_0cc04d8a84.jpg');
var pic5 = new Image();pic5.src = 'uploads/pics/immo/1/_processed_/c/a/csm__468775_6363c93cb8.jpg';
allpics.push('uploads/pics/immo/1/_processed_/c/a/csm__468775_6363c93cb8.jpg');
var pic6 = new Image();pic6.src = 'uploads/pics/immo/1/_processed_/7/4/csm__468779_4b4c4ca76f.jpg';
allpics.push('uploads/pics/immo/1/_processed_/7/4/csm__468779_4b4c4ca76f.jpg');
var pic7 = new Image();pic7.src = 'uploads/pics/immo/1/_processed_/1/0/csm__468781_a6b04ce71d.jpg';
allpics.push('uploads/pics/immo/1/_processed_/1/0/csm__468781_a6b04ce71d.jpg');
var pic8 = new Image();pic8.src = 'uploads/pics/immo/1/_processed_/a/b/csm__468783_39711495b1.jpg';
allpics.push('uploads/pics/immo/1/_processed_/a/b/csm__468783_39711495b1.jpg');
var pic9 = new Image();pic9.src = 'uploads/pics/immo/1/_processed_/f/4/csm__468785_47c36edbc0.jpg';
allpics.push('uploads/pics/immo/1/_processed_/f/4/csm__468785_47c36edbc0.jpg');
Weitere Objekte zu Ihrer Suche
Kontakt
Telefonkontakt
| Immobilienmakler | |
| Dresden: | 0351 433 130 |
| Leipzig: | 0341 600 539 90 |
| Chemnitz: | 0371 238 710 600 |
| Hausverwaltung | |
| Dresden: | 0351 213 914 60 |
| Mietersprechzeiten | |
| Montag: | 09:00 - 12:00 Uhr 13:00 - 17:00 Uhr |
| Mittwoch: | 09:00 - 12:00 Uhr |
| Donnerstag: | 09:00 - 12:00 Uhr 13:00 - 15:30 Uhr |





























































































































































































































































































































































































































































