4 Zimmerwohnung mit Balkon zum Kauf | Erstbezug | PKW Stellplatz
Eckdaten
| Objekt-ID: | 66920 |
| Lage: | 01157 Dresden |
| Immobilienart: | Eigentumswohnung (Invest.) |
| Zimmer: | 4 |
| Etage: | 1 |
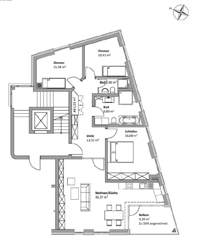
| Wohnfläche: | ca. 110 m² |
| Gesamtfläche: | ca. 110 m² |
| Bezugstermin: | in Abstimmung |
| Kaufpreis: | 534.100,00 € |
| Kaufpreis/m²: | 4.855,45 € |
| Anzahl Parkflächen: | 1 |
| Preis pro Parkfläche: | 13.000 € |
| Mieteinnahmen (Soll): | 16.500,00 € |
Beschreibung
Zum Verkauf steht eine moderne ca. 109 m² große Vierzimmerwohnung mit Balkon im 1. Obergeschoss eines geplanten dreigeschossigen Mehrfamilienhauses mit insgesamt sechs Wohneinheiten. Das Neubauprojekt entsteht auf einem ca. 980 m² großen Grundstück.
Zuästzlich kann ein PKW Stellplatz (á 18.000 €) und zwei Fahrrasstellplätze (je 1.500 €) erworben werden.
Aktuell sind noch folgende Wohnungen verfügbar:
3 x Zweizimmerwohnungen mit jeweils ca. 68 m²
1 x Dreizimmerwohnung mit ca. 97 m²
2 x Vierzimmerwohnungen mit jeweils ca. 109 m²
Alle Wohnungen verfügen über einen Balkon oder eine Terrasse mit einem Grünflächenanteil.
Der Verkäufer hat keine Mietkalkulation erstellt, da die Vermietungskonditionen dem Erwerber überlassen bleiben. Bei der Renditeberechnung wurde mit einer Kaltmiete von 12,50 €/m² kalkuliert. Wir möchten jedoch darauf hinweisen, dass die Verkäuferseite keine Garantie auf diesen Mietzins gibt.
Bei Interesse erhalten Sie gern weiterführende Informationen.
Zuästzlich kann ein PKW Stellplatz (á 18.000 €) und zwei Fahrrasstellplätze (je 1.500 €) erworben werden.
Aktuell sind noch folgende Wohnungen verfügbar:
3 x Zweizimmerwohnungen mit jeweils ca. 68 m²
1 x Dreizimmerwohnung mit ca. 97 m²
2 x Vierzimmerwohnungen mit jeweils ca. 109 m²
Alle Wohnungen verfügen über einen Balkon oder eine Terrasse mit einem Grünflächenanteil.
Der Verkäufer hat keine Mietkalkulation erstellt, da die Vermietungskonditionen dem Erwerber überlassen bleiben. Bei der Renditeberechnung wurde mit einer Kaltmiete von 12,50 €/m² kalkuliert. Wir möchten jedoch darauf hinweisen, dass die Verkäuferseite keine Garantie auf diesen Mietzins gibt.
Bei Interesse erhalten Sie gern weiterführende Informationen.
Lage
Das Grundstück befindet sich in Dresden Omsewitz, nahe des Landschaftsschutzgebietes Zschonergrund mit dem Zschonergrundbad und der Zschonermühle.
Omsewitz ist ein idyllischer Stadtteil im Westen von Dresden, der durch seine ruhige und naturnahe Atmosphäre besticht. Der Stadtteil ist geprägt von einer Mischung aus alten Bauernhäusern, Fachwerkgebäudenund modernen Ein- und Mehrfamilienhäuser, was ihm einen einzigartigen Charme verleiht.
Omsewitz liegt etwa sieben Kilometer westlich des Dresdner Stadtzentrums und ist gut an das Verkehrsnetz angebunden. Die Bundesstraße B173 verläuft in unmittelbarer Nähe, und durch den öffentlichen Nahverkehr ist Omsewitz mit mehreren Bus- und Straßenbahnlinien leicht zu erreichen. Die Nähe zur Autobahn A4 bietet zudem eine schnelle Verbindung. Der Stadtteil wird im Linienverkehr regelmäßig über drei Straßenbahnenlinien erschlossen. Die Dresdner Innenstadt ist so mit öffentlichen Verkehrsmitteln bequem in 20 Minuten erreichbar. Außerdem tangieren Busse im Stadt- und Regionalverkehr dieses Wohnviertel und auch die Autobahnanschlussstelle der A 17 befindet sich in unmittelbarer Nähe.
Die Nähe zum Landschaftsschutzgebiet Zschonergrund, bietet zahlreiche Möglichkeiten für Freizeitaktivitäten. Der Zschonergrundbad ist ein beliebtes Ausflugsziel für Familien und Naturliebhaber. Darüber hinaus gibt es in der Umgebung mehrere Spielplätze und Grünflächen, die zu erholsamen Spaziergängen und sportlichen Aktivitäten einladen.
Im Stadtteil selbst gibt es einige kleinere Geschäfte und Supermärkte, die den täglichen Bedarf decken. Für größere Einkäufe und eine breitere Auswahl an Geschäften bietet sich das nahegelegene Einkaufszentrum in Gorbitz an. In Omsewitz gibt es zudem mehrere Restaurants und Cafés.
In dem Stadtteil befindet sich eine Grundschule. Weiterführende Schulen und Bildungseinrichtungen sind in den benachbarten Stadtteilen leicht zu erreichen.
Omsewitz ist ein idyllischer Stadtteil im Westen von Dresden, der durch seine ruhige und naturnahe Atmosphäre besticht. Der Stadtteil ist geprägt von einer Mischung aus alten Bauernhäusern, Fachwerkgebäudenund modernen Ein- und Mehrfamilienhäuser, was ihm einen einzigartigen Charme verleiht.
Omsewitz liegt etwa sieben Kilometer westlich des Dresdner Stadtzentrums und ist gut an das Verkehrsnetz angebunden. Die Bundesstraße B173 verläuft in unmittelbarer Nähe, und durch den öffentlichen Nahverkehr ist Omsewitz mit mehreren Bus- und Straßenbahnlinien leicht zu erreichen. Die Nähe zur Autobahn A4 bietet zudem eine schnelle Verbindung. Der Stadtteil wird im Linienverkehr regelmäßig über drei Straßenbahnenlinien erschlossen. Die Dresdner Innenstadt ist so mit öffentlichen Verkehrsmitteln bequem in 20 Minuten erreichbar. Außerdem tangieren Busse im Stadt- und Regionalverkehr dieses Wohnviertel und auch die Autobahnanschlussstelle der A 17 befindet sich in unmittelbarer Nähe.
Die Nähe zum Landschaftsschutzgebiet Zschonergrund, bietet zahlreiche Möglichkeiten für Freizeitaktivitäten. Der Zschonergrundbad ist ein beliebtes Ausflugsziel für Familien und Naturliebhaber. Darüber hinaus gibt es in der Umgebung mehrere Spielplätze und Grünflächen, die zu erholsamen Spaziergängen und sportlichen Aktivitäten einladen.
Im Stadtteil selbst gibt es einige kleinere Geschäfte und Supermärkte, die den täglichen Bedarf decken. Für größere Einkäufe und eine breitere Auswahl an Geschäften bietet sich das nahegelegene Einkaufszentrum in Gorbitz an. In Omsewitz gibt es zudem mehrere Restaurants und Cafés.
In dem Stadtteil befindet sich eine Grundschule. Weiterführende Schulen und Bildungseinrichtungen sind in den benachbarten Stadtteilen leicht zu erreichen.
Ausstattungsbeschreibung
* jede Wohnung verfügt über einen Balkon oder Terrasse
* Wäschetrockenraum im Dachgeschoss
* Aufzug
* Fahrradabstellhaus und Sitzecke auf dem Grundstück
* Abstellraum für jede Wohnung im Dachgeschoss
* Tageslichtbäder mit Wanne und Dusche
* Wäschetrockenraum im Dachgeschoss
* Aufzug
* Fahrradabstellhaus und Sitzecke auf dem Grundstück
* Abstellraum für jede Wohnung im Dachgeschoss
* Tageslichtbäder mit Wanne und Dusche
Sonstiges
Der Energieausweis befindet sich in Erstellung.
Hinweis: Fehlende Angaben zum Energieausweis gemäß Energiesparverordnung 2014 ( EnEV ) begründen sich durch Nichtangabepflicht bei Denkmalschutzobjekten, Grundstücken, nichtbeheizbaren Immobilien oder wurden bisher trotz Aufforderung gegenüber dem Auftraggeber nicht zur Verfügung gestellt.
Haftungsausschluss: Trotz sorgfältiger Bearbeitung von Daten, Bildern und Informationen übernehmen wir keine Haftung für die Richtigkeit der Angaben, ebenso wenig für die Lieferfähigkeit des Angebotes bei Vermietung bzw. Verkauf. Bitte beachten Sie hierzu unsere allgemeinen Geschäftsbedingungen die Sie unter www.der-immo-tip.de einsehen können.
Hinweis: Fehlende Angaben zum Energieausweis gemäß Energiesparverordnung 2014 ( EnEV ) begründen sich durch Nichtangabepflicht bei Denkmalschutzobjekten, Grundstücken, nichtbeheizbaren Immobilien oder wurden bisher trotz Aufforderung gegenüber dem Auftraggeber nicht zur Verfügung gestellt.
Haftungsausschluss: Trotz sorgfältiger Bearbeitung von Daten, Bildern und Informationen übernehmen wir keine Haftung für die Richtigkeit der Angaben, ebenso wenig für die Lieferfähigkeit des Angebotes bei Vermietung bzw. Verkauf. Bitte beachten Sie hierzu unsere allgemeinen Geschäftsbedingungen die Sie unter www.der-immo-tip.de einsehen können.
Energieeffizienz
| Heizungsart: | Fußbodenheizung |
| Denkmalschutz: | Nein |
Kontakt
Christian Müller
Semperstraße 1
01069 Dresden
E-Mail:info@der-immo-tip.de
Telefon:0351 433 13 0
Telefax:0351 433 13 18
Semperstraße 1
01069 Dresden
E-Mail:info@der-immo-tip.de
Telefon:0351 433 13 0
Telefax:0351 433 13 18
Objekt anfragen
while(allpics.length > 0){
allpics.pop();
}
var objnummer ="66920";var pic0 = new Image();pic0.src = 'uploads/pics/immo/1/_processed_/d/e/csm_66920-a_visualisierung_7500a240dd.jpg';
allpics.push('uploads/pics/immo/1/_processed_/d/e/csm_66920-a_visualisierung_7500a240dd.jpg');
var pic1 = new Image();pic1.src = 'uploads/pics/immo/1/_processed_/d/2/csm_66920-b9_grundriss_e2100bd1b5.jpg';
allpics.push('uploads/pics/immo/1/_processed_/d/2/csm_66920-b9_grundriss_e2100bd1b5.jpg');
Kontakt
Telefonkontakt
| Immobilienmakler | |
| Dresden: | 0351 433 130 |
| Leipzig: | 0341 600 539 90 |
| Chemnitz: | 0371 238 710 600 |
| Rostock: | 0381 128 736 10 |
| Hausverwaltung | |
| Dresden: | 0351 213 914 60 |
| Mietersprechzeiten | |
| Montag: | 09:00 - 12:00 Uhr 13:00 - 17:00 Uhr |
| Mittwoch: | 09:00 - 12:00 Uhr |
| Donnerstag: | 09:00 - 12:00 Uhr 13:00 - 15:30 Uhr |

























































































































































































































































































































































































































































































