2 Balkone, 1 Terrasse & eigener Garten - Highlightwohnung an der Heide!
Eckdaten
| Objekt-ID: | 66900 |
| Lage: | 01454 Radeberg |
| Immobilienart: | Erdgeschosswohnung |
| Zimmer: | 4 |
| Grundstücksfläche: | ca. 830 m² |
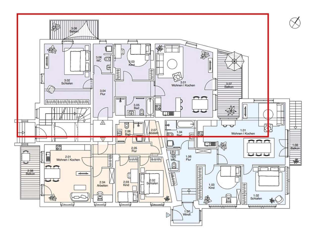
| Wohnfläche: | ca. 135 m² |
| Kaufpreis: | 478.540,00 € |
| Freiplätze: | 1 |
| Kaufpreis Stellplatz: | 8.000 € |
Beschreibung
Zum Verkauf steht eine ca. 135 m² große 4-Zimmer-Wohnung im Erdgeschoss eines Mehrfamilienhauses.
Ursprünglich ist die Einheit als 3-Zimmer Variante geplant, jedoch kann das ca. 30 m² Schlafzimmer ca. hälftig geteilt werden. Die genaue Variante kann mit dem Projektentwickler abgestimmt werden.
Der Verkäufer plant eine Kernsanierung der Immobilie. Vorgesehen ist der Umbau zu 7 3- bzw. 3,5-Raum Wohnungen mit Balkonen/Terrassen und Wohnflächen von ca. 66 m² bis ca. 135 m². Im Rahmen dieser Planung sind auch 6 Außenstellplätze berücksichtigt. 3 Wohnungen erhalten zusätzlich eine befestigte Außenterrasse mit mind. 10 m² und eine eigene Gartenfläche.
Der Baubeginn erfolgt nach dem Verkauf und es wird mit einer Bauzeit von etwa 12 Monaten kalkuliert. Somit hat der Erwerber die Möglichkeit seine eigenen Ideen und Vorstellungen zur Ausstattung in Absprache mit dem Projektentwickler umzusetzen.
Ein Außenstellplatz muss für 8.000,00 € zusätzlich erworben werden.
Bei Interesse stimmen wir gern einen Besichtigungstermin ab bzw. stellen Ihnen weiterführende Unterlagen zur Verfügung.
Der Erwerb der Liegenschaft ist für Sie provisionsfrei.
Weitere interessante Angebote können Sie gern unter www.der-immo-tip.de anschauen.
Ursprünglich ist die Einheit als 3-Zimmer Variante geplant, jedoch kann das ca. 30 m² Schlafzimmer ca. hälftig geteilt werden. Die genaue Variante kann mit dem Projektentwickler abgestimmt werden.
Der Verkäufer plant eine Kernsanierung der Immobilie. Vorgesehen ist der Umbau zu 7 3- bzw. 3,5-Raum Wohnungen mit Balkonen/Terrassen und Wohnflächen von ca. 66 m² bis ca. 135 m². Im Rahmen dieser Planung sind auch 6 Außenstellplätze berücksichtigt. 3 Wohnungen erhalten zusätzlich eine befestigte Außenterrasse mit mind. 10 m² und eine eigene Gartenfläche.
Der Baubeginn erfolgt nach dem Verkauf und es wird mit einer Bauzeit von etwa 12 Monaten kalkuliert. Somit hat der Erwerber die Möglichkeit seine eigenen Ideen und Vorstellungen zur Ausstattung in Absprache mit dem Projektentwickler umzusetzen.
Ein Außenstellplatz muss für 8.000,00 € zusätzlich erworben werden.
Bei Interesse stimmen wir gern einen Besichtigungstermin ab bzw. stellen Ihnen weiterführende Unterlagen zur Verfügung.
Der Erwerb der Liegenschaft ist für Sie provisionsfrei.
Weitere interessante Angebote können Sie gern unter www.der-immo-tip.de anschauen.
Lage
Die Immobilie befindet sich in Radeberg, im Ortsteil Ullersdorf, nahe der Dresdner Heide.
Ullersdorf ist ein malerischer Ortsteil von Radeberg und liegt in der reizvollen Umgebung südlich von Dresden. Diese Region besticht durch ihre naturnahe Lage mit Wäldern, Feldern und sanften Hügeln. Ullersdorf bietet eine erholsame und idyllische Atmosphäre und ist dennoch verkehrstechnisch gut angebunden an die nahe gelegene Stadt Dresden sowie die umliegenden Ortschaften.
Ullersdorf verfügt über eine gute Infrastruktur. Mit dem Auto erreicht man das Zentrum von Dresden in etwa 20 Minuten. Auch mit den öffentlichen Verkehrsmitteln ist Ullersdorf gut erreichbar. Busse verbinden den Ort mit Radeberg und Dresden. Die Autobahn A4 ist schnell erreichbar und bietet eine gute Anbindung an das regionale und überregionale Straßennetz.
Für Naturliebhaber und Aktivurlauber ist Ullersdorf ein attraktiver Wohnort. Die Umgebung lädt zu Spaziergängen, Wanderungen und Fahrradtouren ein. Der nahegelegene Radeberger Stadtwald und die umliegenden Naturparks bieten vielfältige Möglichkeiten zur Erholung und Entspannung im Grünen. In Radeberg gibt es zudem ein Freibad und andere Freizeiteinrichtungen.
Ullersdorf ist ein malerischer Ortsteil von Radeberg und liegt in der reizvollen Umgebung südlich von Dresden. Diese Region besticht durch ihre naturnahe Lage mit Wäldern, Feldern und sanften Hügeln. Ullersdorf bietet eine erholsame und idyllische Atmosphäre und ist dennoch verkehrstechnisch gut angebunden an die nahe gelegene Stadt Dresden sowie die umliegenden Ortschaften.
Ullersdorf verfügt über eine gute Infrastruktur. Mit dem Auto erreicht man das Zentrum von Dresden in etwa 20 Minuten. Auch mit den öffentlichen Verkehrsmitteln ist Ullersdorf gut erreichbar. Busse verbinden den Ort mit Radeberg und Dresden. Die Autobahn A4 ist schnell erreichbar und bietet eine gute Anbindung an das regionale und überregionale Straßennetz.
Für Naturliebhaber und Aktivurlauber ist Ullersdorf ein attraktiver Wohnort. Die Umgebung lädt zu Spaziergängen, Wanderungen und Fahrradtouren ein. Der nahegelegene Radeberger Stadtwald und die umliegenden Naturparks bieten vielfältige Möglichkeiten zur Erholung und Entspannung im Grünen. In Radeberg gibt es zudem ein Freibad und andere Freizeiteinrichtungen.
Ausstattungsbeschreibung
* 2 Balkone mit ca. 15 m² und 10 m²
* Terrasse mit ca. 14 m²
* Gartenfläche zur Eigennutzung
* Bad mit Wanne & Dusche
* Gäste-WC mit Fenster
* großzügiger ca. 43 m² Wohn-Kochbereich
* eigenes Kellerabteil
* Terrasse mit ca. 14 m²
* Gartenfläche zur Eigennutzung
* Bad mit Wanne & Dusche
* Gäste-WC mit Fenster
* großzügiger ca. 43 m² Wohn-Kochbereich
* eigenes Kellerabteil
Sonstiges
Hinweis: Fehlende Angaben zum Energieausweis gemäß Energiesparverordnung 2014 ( EnEV ) begründen sich durch Nichtangabepflicht bei Denkmalschutzobjekten, Grundstücken, nichtbeheizbaren Immobilien oder wurden bisher trotz Aufforderung gegenüber dem Auftraggeber nicht zur Verfügung gestellt.
Haftungsausschluss: Trotz sorgfältiger Bearbeitung von Daten, Bildern und Informationen übernehmen wir keine Haftung für die Richtigkeit der Angaben, ebenso wenig für die Lieferfähigkeit des Angebotes bei Vermietung bzw. Verkauf. Bitte beachten Sie hierzu unsere allgemeinen Geschäftsbedingungen die Sie unter www.der-immo-tip.de einsehen können.
Haftungsausschluss: Trotz sorgfältiger Bearbeitung von Daten, Bildern und Informationen übernehmen wir keine Haftung für die Richtigkeit der Angaben, ebenso wenig für die Lieferfähigkeit des Angebotes bei Vermietung bzw. Verkauf. Bitte beachten Sie hierzu unsere allgemeinen Geschäftsbedingungen die Sie unter www.der-immo-tip.de einsehen können.
Kontakt
Christian Müller
Semperstraße 1
01069 Dresden
E-Mail:dit_cm_anfragen@myonoffice.de
Telefon:0049351433130
Semperstraße 1
01069 Dresden
E-Mail:dit_cm_anfragen@myonoffice.de
Telefon:0049351433130
Objekt anfragen
while(allpics.length > 0){
allpics.pop();
}
var objnummer ="66900";var pic0 = new Image();pic0.src = 'uploads/pics/immo/1/_processed_/2/c/csm_f5cd7794-699d-4552-abac-fca1c9b27166_9558bf38b0.jpg';
allpics.push('uploads/pics/immo/1/_processed_/2/c/csm_f5cd7794-699d-4552-abac-fca1c9b27166_9558bf38b0.jpg');
var pic1 = new Image();pic1.src = 'uploads/pics/immo/1/_processed_/2/d/csm_33f19adf-77f2-405a-a39e-4959259de5d3_37dbe74889.jpg';
allpics.push('uploads/pics/immo/1/_processed_/2/d/csm_33f19adf-77f2-405a-a39e-4959259de5d3_37dbe74889.jpg');
var pic2 = new Image();pic2.src = 'uploads/pics/immo/1/_processed_/f/4/csm_538722ff-2eed-4655-9891-31f72bb29c38_222bed6d8b.jpg';
allpics.push('uploads/pics/immo/1/_processed_/f/4/csm_538722ff-2eed-4655-9891-31f72bb29c38_222bed6d8b.jpg');
var pic3 = new Image();pic3.src = 'uploads/pics/immo/1/_processed_/0/f/csm_cd1141b8-cca9-4653-b9c0-3df0182132a8_28280c9127.jpg';
allpics.push('uploads/pics/immo/1/_processed_/0/f/csm_cd1141b8-cca9-4653-b9c0-3df0182132a8_28280c9127.jpg');
Weitere Objekte zu Ihrer Suche
Lager- und Produktionsflächen direkt an der S177 und S81 - unweit der Halbleiterindustrie - zum Kauf!
Lager- und Produktionsflächen direkt an der S177 und S81 - unweit der Halbleiterindustrie - zum Kauf!
Kontakt
Telefonkontakt
| Immobilienmakler | |
| Dresden: | 0351 433 130 |
| Leipzig: | 0341 600 539 90 |
| Chemnitz: | 0371 238 710 600 |
| Rostock: | 0381 128 736 10 |
| Hausverwaltung | |
| Dresden: | 0351 213 914 60 |
| Mietersprechzeiten | |
| Montag: | 09:00 - 12:00 Uhr 13:00 - 17:00 Uhr |
| Mittwoch: | 09:00 - 12:00 Uhr |
| Donnerstag: | 09:00 - 12:00 Uhr 13:00 - 15:30 Uhr |
























































































































































































































































































































































































































































































